*** START OF THE PROJECT GUTENBERG EBOOK 75063 ***

HOSPITAL
HOUSEKEEPING

By

CHARLOTTE A. AIKENS

Late Director Sibley Memorial Hospital, Washington, D. C.; Late
Superintendent of Iowa Methodist Hospital, Des Moines;
Superintendent of Columbia Hospital, Pittsburg;
Former Associate Editor The National
Hospital Record

SECOND EDITION

Detroit, Mich.
DEL T. SUTTON
1910

Copyright 1906
by
DEL T. SUTTON


[Pg 7]

PREFACE

In the preparation of this volume, three classes of readers have been in mind: the trained nurse who, without practical experience in hospital management, finds herself in charge of a hospital, small or large; the practical woman who, having had no opportunity for special training, has upon her the responsibility of the direction of the domestic affairs of an institution; and the lady member of the hospital board of managers who, in the discharge of the duties of her position, becomes responsible to the public for the proper government of institutional affairs. It was thought that the latter, especially, might, through the use of this volume, secure a better grasp of the details of hospital housekeeping as a whole than is possible without some such aid. The ability to see all around a situation, to view the institution as a whole, is essential to good management. As a rule, such ability comes only by experience. Especial pains have been taken to make the volume thoroughly practical, and to present clearly and concisely lessons learned in actual dealing with, and close study of, the questions discussed. The greater portion of the contents of the volume have already seen the light of day in the columns of the National Hospital Record. Since their appearance in that journal, the papers have been carefully revised, and much new and important matter added. For assistance in preparation, the author has been under great obligation to a number of hospital superintendents, who have furnished [Pg 8] information as to methods, and to contemporary writers, especially on the subject of dietetics. Special mention should be made of the works of W. Gilman Thompson, M. D., Mrs. Ellen H. Richards, I. Burney Yeo, M. D., Sir Henry Burdett, and of the literature of the United States Department of Agriculture. To Miss Emma Lynch, who, as hospital matron, has been for several years associated with the author in institutional work, special thanks are due for valuable assistance. Many practical suggestions have been gleaned from the papers given at the annual conventions of the Association of Hospital Superintendents. To the writers of these papers the author expresses grateful appreciation. Many of the electrotypes used for illustration have been kindly furnished by courtesy of the business firms whose names accompany them. These have been introduced because they were deemed essential to a clear understanding of the subject on the part of such readers as may not be familiar with the use of such appliances. So far as the author is aware, no attempt has previously been made to discuss the subject of hospital housekeeping as a whole. As a pioneer in the field, the book doubtless has many defects. If it proves of practical value to even a small number of those for whose assistance it was prepared, it will have justified its existence.

Charlotte A. Aikens.


[Pg 9]

TABLE OF CONTENTS.

Preface     7-8
Chapter I The Hospital Housekeeper; The Housekeeper’s  
  Province; Bookkeeping; Hospital Inventory 13-19
Chapter II The Main Entrance; The Porter; The Private  
  Rooms; Hospital Couches; Fumigation;  
  The Daily Cleaning; Dusting; Bath Rooms 20-29
Chapter III The Hospital Ward; Soiled Clothing;  
  Buying Beds; Bed Making; Ward Lockers; Care  
  of Patients’ Clothing; Ward Medicines and Records;  
  Adjuncts to the Hospital Ward; Quiet Room;  
  Matters Miscellaneous; Destruction of Appliances;  
  Screens; A Twenty-Bed Ward Equipment 30-42
Chapter IV The Linen Room; Bed Linen; The Room; Linen  
  Accounting; Discarded Linen; Emergency  
  Supply; Removing Stains; New Linen;  
  Shelf Management; Laundry Bags 43-50
Chapter V The Hospital Laundry; Manager’s Duties;  
  Laundry Workers; Starching; Blueing; Drying;  
  Ironing; Routine of Work; The Laundry Plant 51-59
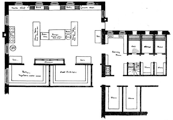
Chapter VI The Hospital Kitchen; General Construction;  
  Kitchen Cabinet; Plan of a Model Kitchen;  
  Cold Storage; The Storeroom; Dishwashing;  
  Dishcloths and Towels; The Chief Kitchen  
  Employees; Training Needed; The Diet Kitchen 60-70 [Pg 10]
Chapter VII The Purchase and Care of Food Supplies; Judging  
  Food Values; Bread; Milk; Care of Milk; Cheese;  
  Eggs; Economy and Care; Meat; Beef; Veal and  
  Mutton; Chickens; Fish; Pork; Butter; Fresh  
  Vegetables; Approximate Estimate of Quantities  
  of Food for a Twenty-five Bed, a Fifty-Bed and  
  a One Hundred-Bed Hospital 71-87
Chapter VIII Preparation of Food; Object of Cooking;  
  Classes of Diets; Broths; Soups; Cooking  
  Meats; Cooking Vegetables; Time of Meals 88-97
Chapter IX Diet Lists and Blanks; Serving of Food;  
  Tray Setting; Bills of Fare; Dishes;  
  Hints on Serving 98-110
Chapter X Hospital Dietaries; Supplies for One Hundred  
  Persons for Thirty Days; Menus for  
  Nitrogenous Diet 110-119
Chapter XI Hospital Hygiene; Prevention of Disease;  
  Sanitary Kitchens; Pure Food; Filters and  
  Water; Air; Cleanliness; Flies; Garbage;  
  Garbage Crematories 120-131
Chapter XII The Help Question; Number of Servants;  
  Contracts; Merit System; Schedule of  
  Work; Rules; Servants’ Dining Rooms;  
  Sleeping Rooms; Attire; Housekeeper’s  
  Relation to Servants 132-143
Chapter XIII The Problem of Waste; Main Causes; First Steps;  
  Surgical Department; Utilizing Hospital Waste;  
  Soap making; Drugs; Wasteful Physicians; Teach  
  Economy; Abuse of Appliances; Careful Accounting;  
  Watching the Expenditures; Dietetic Department;  
  System 144-158
Appendix Disinfection; Fumigation Can;  
  Exterminationof Vermin; Care of Floors 159-162 [Pg 11]

[Pg 12]


[Pg 13]

Hospital Housekeeping

CHAPTER I.

The Hospital Housekeeper

Hospital housekeeping is intensely practical business. If it is to be successfully and satisfactorily conducted, it demands that the housekeeper be a woman of no inferior or uncertain attainments. All the elements that make for success in home housekeeping, and many more, are needed in a hospital. There must be breadth of vision, the qualities of an organizer, the ability to deal with large problems, a keen sense of justice, and the executive force needed to manage, without fear, fuss or favor, the various classes of people that touch the housekeeper’s realm. Many a man who is a success in managing a village store would utterly fail when placed in charge of even one section of a great department store. And the same may be said of the average woman in hospital housekeeping. Apart from the special knowledge of the business, that comes only by diligent study, accurate observation and experience—never by accident—the housekeeper needs special qualities of mind and heart. Indeed, special qualifications are needed by every one whose life work is to be wrought out in an institution. A hospital or any institution that has to deal with infirm, aged or unfortunate members of society, is no place for a person of strong racial [Pg 14] antipathies. It is no place for the tale-bearer or the gossip, nor for the person who has a grudge against fate and feels she has never received justice. It is no place for the person who is discouraged, or who assumes the air of a martyr, and leads a crushed life, bemoaning the fact that her highest motives and best efforts are never appreciated. Those who would live happily in an institution must be prepared to be misunderstood, and fortified against discouragement from that source. Sympathy with the aims of the institution is a primary qualification. No one should enter an institution as a worker, and especially as head of a department, who is not prepared to have her interests centered in the people for whose benefit the institution was brought into existence. Ability to see things from more than one standpoint, to work comfortably with different classes of people, an infinite capacity for detail, and systematic business habits—these are a few of the qualities that should characterize the woman who undertakes to manage the domestic affairs of a hospital. It need hardly be mentioned that she needs a healthy body and a strong constitution.

The hospital housekeeper needs, if anyone needs it, reliability of judgment, and poise of soul. If she is to control others, she must know how to control herself. The ability to reprimand without arousing antagonism must be hers. She should endeavor to cultivate the feeling of personal responsibility in all over whom she has authority, and to make them understand that the success of an institution depends not on perfection of equipment, nor in numbers, but in thorough co-ordination of the work in all the departments, and faithful service on the part of all.

They should know that a lack of punctuality or carelessness in one department disturbs the working of the entire system. The influence of [Pg 15] the kitchen and laundry is felt throughout the entire institution. Skillful management consists not alone in the ability to attend to the apparently important affairs with ease, but in never losing sight of the minor details. Nothing is so large as to be of paramount importance, nothing so small as to be considered immaterial, where human lives are concerned.

The Housekeeper’s Province

To define the exact limits of the housekeeper’s province is impossible, as institutions vary so greatly in size and in the number of officers. Local conditions always influence the situation. One lone woman may have to manage the domestic affairs of an institution, superintend its entire business, including its nursing, manage its bookkeeping, do the work of an interne in emergencies, and act in various other capacities, that readily suggest themselves to those who are acquainted with life in a small hospital. In another institution her province may be limited entirely to the purely domestic affairs, the purchase and preparation of food, care of linen, the cleaning, and the management of those who work in these departments. In either instance, the responsibility is great. To meet this responsibility without being oppressed by its weight, requires that the working force be completely organized, the work definitely divided and assigned. There should not be a square inch of the building for which someone is not directly responsible for its good order and cleanliness. Real success in management, however, does not alone consist in the work going on as it should while the housekeeper is there to direct and supervise. Her own health and efficiency demand that she have recreation and rest, and, as a matter of fact, depend on her not being always there. Her skill and generalship of the situation will be shown in the fact that, whether present or absent, the routine of the work is not noticeably interrupted. In every institution there should be some individual who is [Pg 16] sufficiently acquainted with her methods to assume control and carry on the system in her absence.

Bookkeeping

In addition to the mastery of the details of the practical work, the hospital housekeeper must know how to give an account of her stewardship to those who have a right to demand it. The business side of hospital work, that which has to do with dollars and cents, is one of her many duties that has special importance. It is one of the corner-stones in the hospital foundation, and however much the housekeeper may dislike the tedious work of adding and subtracting, and reckoning, and itemizing, if she is a faithful steward of trust funds, she will give it due attention. The weak point in a great many hospitals is the looseness of methods of accounting. Frequently the board of managers are not sufficiently impressed with their responsibility to plan and demand a system of bookkeeping that will furnish plain facts in a shape that will be easily grasped; and it is not to be wondered at that the housekeeper is, if not careless, then not sufficiently careful for her books to be of any value as institutional records.

The busy housekeeper needs a simple method of accounting that is at once comprehensive and easy to handle. A simple, convenient form for a general expense book is here shown. One page can be devoted to each week’s or month’s expenditures and the use of such method makes the annual financial statement an easy matter to arrange. It is not claimed that this is the best method for a general expense account; it is one method—a simple, workable method.

In addition to this the use of a small day book will be necessary, which will show on the left-hand page the money received and on the other side the disbursements for the day. For this an ordinary blank book that has spaces ruled for dates, items, dollars and cents, will be sufficient. In this each day will be recorded the article purchased, the date and the cost. Periodically this itemized account is gone over, the articles grouped under the several heads and copied in the general expense book. [Pg 17]

GENERAL HOSPITAL

Receipts and Expenditures from ___________ to ___________
 
RECEIPTS        
Balance on hand .... 1st, 190...        
Received from .......................
Received from .......................
Received from .......................
Received from other sources ....
 
 
 
EXPENDITURES        
       
Meat
Fish
Butter
Flour, bread and meal
Milk
Water supply
Ice
Potatoes and vegetables
Groceries and provisions not
above enumerated
Soap and cleaning appliances
Fuel
Gas, oil and light
Bedding and general house
furnishings
Nurses’ uniforms
Other training school expenses
Advertising, printing, stationery,
postage
Repairs
Stationary furnishings
Contingencies

[Pg 18] An “order book” should contain an account of all orders given, the quantity, cost, date ordered, date received. An ordinary blank-book may be ruled with columns for each of these entries, and the month and year. This furnishes information that is valuable from several standpoints. If the housekeeper is suddenly called away, it is easy to turn to for a list of the firms patronized, or to find the usual amounts ordered, and is valuable for comparison and reference from month to month and year to year. All dealers’ checks sent with goods should be preserved, for comparison with the itemized monthly account, before indorsing it for payment.

Hospital Inventory

In the matter of the hospital inventory, various forms may be adopted, according to the purposes for which the inventory is intended. It may be a simple list of the furnishings of the hospital, made up without any special plan, and with or without the value or cost of the article attached. In case of loss by fire, this inventory might have special value as an insurance record. Such books should of course be kept in the safe, with other documents and articles of value.

As convenient as any way of keeping a hospital inventory, is to have the contents of the building arranged under the heads of the rooms for which the articles were purchased. The kitchen, storerooms, diet kitchens, offices, reception rooms, wards, private rooms, etc., all have stationary furniture especially for them, and for purposes of reference it will be most convenient to list this in connection with [Pg 19] the room containing it. If the value of each article is attached a recapitulation will show at a glance the total value of the hospital furnishings.

Once each year, at least, the housekeeper should make a business of finding out the average cost per day of feeding her hospital family, and the average cost of feeding one patient. This knowledge is valuable not alone for statistics, but for her own satisfaction. It should give confidence in her administration, or show whether there is a weakness that might be corrected.


[Pg 20]

CHAPTER II.

The Main Entrance

“There is nothing in a hospital small enough to be careless about,” is a remark frequently heard in hospital corridors. It is important for the housekeeper to bear in mind that, although oft quoted, this statement happens to be true. Perhaps no one thing will produce a more lasting impression on a casual visitor than the manner in which he is received at the front entrance. Two trained nurses who spent a couple of days in visiting hospitals in an eastern city related the following experience: At hospital number one the door was opened by a very untidy-looking, irrepressible colored boy, who seemed to feel it his duty to do the gallant thing according to his ideas of gallantry. After an entirely unnecessary speech, his concluding remarks were that he would just love to go through the hospital with them, but he “ain’t got no time,” and he guessed he’d have to ask Dr. —— to go with them. At hospital number two, no one specially seemed to be in charge of the door, and, after repeated rings, a resident physician, who, judging from his hair and general appearance, had been napping, came rushing through the hall—the door was open—getting into his coat by the time he reached the door. The climax was reached at hospital number three, which was a maternity hospital, an adjunct of a large city hospital. Here the door was opened by a colored woman in the last stages of pregnancy. At hospital number four a pert maid, none too tidy, was on [Pg 21] duty at the front entrance. Her distinguishing feature seemed to be that she “didn’t know.” At hospitals five and six, the persons in charge knew what was expected, and did the proper thing, but the varied experiences served to show the laxity that exists in that one particular.

The Porter

The careful hospital housekeeper will see to it that the person in charge of the main entrance knows his business and is reliable and courteous. He need not know all the business of the institution, but he should know enough to answer questions properly and when to be silent. If no special uniform is provided, he should be neatly and quietly attired. Parcels, telegrams, messages, are constantly being delivered for the inmates, and he should be responsible for them until they are delivered to the nurse in charge. Letters should be placed in a locked box, the key to be held by some reliable person who will see to their distribution. Mail for the patients should not be given to the inmates direct, but to the nurse in charge, and some nurse should always be in charge. Carelessness at this point may result in an important letter or message not being delivered, or delivered at a time when it is specially important that the patient’s mind be free from disturbance or intrusion of any kind. Complaints are frequently made, of large hospitals especially, that boxes of flowers sent to patients have been thrown carelessly into a parcel room, and not delivered at all, or delivered after their beauty and fragrance had gone. If the person at the door is careless about matters of that kind, he will be just as likely to be careless about more serious things. A temporary substitute at the door should always be arranged for when the porter is obliged to be absent, even for a few minutes.

The Private Rooms

In all apartments intended for the use of patients some degree of [Pg 22] uniformity should be observed in the furnishings, though this may easily be carried to extremes. These rooms vary in size and price, but the essentials for all are the same. The chief thought should be to have the furnishings suitable, sensible and restful. Dainty white enameled furniture for hospital rooms is rapidly replacing that of darker hue and adds greatly to the attractiveness of the hospital. For [Pg 23] the average room a combination dresser and washstand is preferable to cumbering the room with two separate pieces of furniture. These have the essential features of the dresser, in that they provide a mirror and drawers, and of the washstand by having a towel rack and cupboard. In any case, small dressers are preferable to large ones. Every private room should have its own wash bowl and pitcher, soap dish, mug, receptacle for toilet brush, water bottle and drinking glass. The bed should be placed so that the nurse can have access to it on three sides. The woven-wire springs should be warranted not to sag in the middle.

Combination Dresser and Washstand

Blankets, on account of the frequent washings, should not be all wool, nor too heavy. For warmth it is better to depend on light blankets than on any form of “comforter.”

Rugs may be as bright and handsome as the hospital can purchase. The cheap wool rugs that are everywhere displayed for sale are a poor investment. The most satisfactory rugs are those made to order of tapestry Brussels, or when it can be afforded, the more expensive grade of Brussels or velvet. For small rooms three widths are usually sufficient and these made without border are not an expensive rug. For larger rooms a border is preferable, but in any case such rugs are economical and serviceable.

Long lace curtains should have no place in a hospital. They are always getting in the way and being torn, always collecting dust and always an obstacle to the view and to ventilation. At best they are a nuisance, an unnecessary expense and serve no useful purpose. Soft, plain white sash curtains are the only suitable curtains for the hospital window. Provision should be made for looping them back if the patient desires it, and most patients have a longing desire to see out of doors. [Pg 24]

A comfortable, roomy rocker, with arms and without any “squeaks,” is indispensable in the private room.

Hospital Couches

If large enough, the room should also have a couch. It makes an agreeable change from the bed during convalescence. The common couches with elevated head are most unsatisfactory. No patient can lie on an inclined plane for any length of time in comfort. When it becomes necessary for a nurse to sleep in the patient’s room when on “special duty” these couches are an abomination. No nurse could ever get up feeling really rested, after trying to sleep on such a couch. The best hospital couch is that styled sometimes “the den couch.” The bed is flat, a full six feet by two, and the headboard being at right angles, effectually prevents the pillows from slipping off. Such a couch can be made as comfortable as a bed, combining both beauty and utility. They can be made to order by any firm that manufactures couches or beds. When covered with the best grade of pantasote these couches cost usually from fifteen dollars upward and when covered with leather from thirty dollars upward. They are the only kind of hospital couches it pays to invest in.

HOSPITAL COUCH

[Pg 25]

INVALID TABLE

Other Accessories

A straight-back chair, a wardrobe for the patient’s clothing, a movable screen and a small table or two, complete the essentials in the modern sick room. The newest hospital tables are of iron and glass and may be had in different sizes. An invalid’s table that will extend over the bed is a luxury much appreciated by the patient, especially during convalescence. Plenty of pillows is another luxury that will add to the patient’s comfort. A small pillow or two to tuck around the patient, in places where a little warmth or support is desired, is a sensible addition to the ordinary furnishing of the sick room. Half a dozen will be none too many. [Pg 26]

The best finish for the walls of the private room is a coat of oil paint. They can then be subjected to periodical cleaning without being defaced. The shades should be soft and delicate and restful. A pretty shade of greenish blue is a delight to most eyes. On the wisdom of pictures in a sick room, opinion is divided. Some would banish them as unnecessary, and because they afford a lodging place for dust and disease germs. Others would introduce them to banish the monotony and relieve the walls of the bare effect. If used at all, pictures should be carefully selected, and have plain wooden frames, that will not be injured by disinfectants. To many patients the illuminated scripture texts on the walls are a comfort, and few, even of those who in health have no use for such things, object to them when sick. The custom of making memorial rooms, picture galleries or museums where the memory of benefactors is enshrined, is to be condemned. A simple plate on the wall or on the door is sufficient. More than this is unwise and in bad taste. The craze for memorials has reached a point that is embarrassing in many hospitals, and the time must surely come when doctors and hospital officers will interfere, and protest against having the patient forever gazing into the countenance of some member of the family of the benefactor of the institution.

As soon as possible after a patient has left the room, it should undergo a thorough cleaning. Every article but the stationary furnishings should be removed. Carelessness about this matter sometimes proves very embarrassing. Drawers, cupboards, and wardrobes should be washed with a solution of bichloride of mercury. The windows should be cleaned and fresh sash curtains put on. The walls should be brushed, the floor cleaned, the mattress disinfected, the bed clothing washed and all utensils thoroughly aired. If the last occupant was afflicted [Pg 27] with a communicable disease, the mattress should be subjected to steam sterilization.

Fumigation

Fumigation of the rooms periodically is necessary to ensure the safety of the coming patients. Formaldehyde for fumigation purposes has largely superseded sulphur. When the room is ready for fumigation, the windows should be closed, the drawers of the furniture opened, all chinks stopped, the keyhole stopped with cotton, and the room left closed for twenty-four hours. It may then be opened, and, when thoroughly aired, is again ready for occupancy. The sheet method of fumigation, using a pint of formaldehyde to every 1,000 cubic feet of air-space, has been thoroughly tested and proven reliable. The drug is simply poured on the sheet, which is hung over a line in the room to be disinfected, which has been prepared as above directed. It should be remembered that formaldehyde has little or no power of penetration, and for this reason all possible surfaces of materials to be disinfected should be exposed.

The Daily Cleaning

In the daily cleaning, the work should be so divided throughout the entire hospital that the regular morning cleaning can be accomplished in a comparatively short time, leaving special cleaning to be completed later in the day. In order to accomplish this, it may be necessary to employ special cleaners by the hour. This does away with the necessity of providing meals and lodging for a large force of cleaners.

By nine o’clock in the morning the halls and stairs should be in order, front steps and walks cleaned, wards swept and dusted and the whole interior presenting a neat appearance. “Dust in a hospital is not only dust, but danger.” Domestic cleanliness and hospital cleanliness are [Pg 28] quite different terms. The hospital housekeeper owes it to the public and to the sick whom she serves to keep the wards and rooms in the best condition for the promotion of health.

On the hardwood floors a soft hair brush will raise less dust than the ordinary broom. Wet tea leaves should be sprinkled whenever obtainable. The dust should be taken up frequently. The ward floors, unless polished, should be washed every day. It is well to change the water often and not use it too freely. Special attention needs to be given to corners. After each meal it will be necessary to brush up the crumbs.

Dusting

The dusting is even more important than the sweeping, and must be done with great thoroughness and care. Each patient in the hospital is helping to make the atmosphere impure by throwing off disease germs. Dried particles of pus, blood and excreta, lint from blankets and bedding, scales of epithelium and other matter, more or less dangerous, are flying about in the air and being deposited on ledges, skirting boards, window sills, bedstead rails and the various parts of furniture. To bring in a feather duster or a dry cloth and attempt to dust, is simply to flap the dust from one place only to have it settle in another. It results in a more equal distribution of the dust, but it is not dusting. Dusting is removing dust, and the only way that can be done effectually is by the use of a damp cloth, to which the particles will adhere. Furniture that will be injured by that kind of dusting is out of place in a hospital. Special attention needs to be given to dusting under radiators and in obscure nooks where dust will accumulate if not looked into daily.

Bath Rooms

The bath rooms, toilet rooms and lavatories also need constant supervision, and ought to be as carefully cleaned and ventilated as any [Pg 29] part of the hospital. Indeed, special pains are needed if they are to be free from bad odors. Disinfectants should be used freely in these places at least once a week, and any evidence of imperfect drainage promptly reported and attended to. A good disinfectant for this purpose is the one known as the “American Standard,” made by dissolving six ounces of chloride of lime in a gallon of water. For cleaning bath tubs kerosene is recommended. It is a wise precaution to constantly keep posted over closets and sinks a notice prohibiting the throwing of matches, hair and insoluble material into them. More than one plumber’s bill has been caused by a careless maid emptying her bar of soap from her scrubbing pail into the closet. In fact, so common is that occurrence that a careful housekeeper has invented a device for holding the soap, thus preventing such accidents, and also the waste caused by leaving the soap in the water. This device is a tin box about eight inches long by four inches wide and four inches deep in front and six at the back. On the back are two pieces of wire bent over to fasten the box to the outside of the scrubbing pail. These can be made by any tinsmith at a very small cost, and will hold a cake of soap and a cake of sapolio. They will save many times their cost in a year.


[Pg 30]

CHAPTER III.

The Hospital Ward

It is in the hospital ward that the major portion of routine hospital work is accomplished, and where the nurses who will have much of the responsibility of the hospital work of the future will be trained in habits of accuracy and neatness, in proper systems of ward work and good hospital housekeeping. Inasmuch as the number of hospital officers varies with the size and demands of the hospital, it should be understood that for the purposes of these papers the hospital housekeeper combines the position of superintendent of nurses and matron—the plan that is generally conceded to be productive of the greatest degree of harmony. In all but small hospitals, competent assistants in both the nursing and domestic departments will be needed, but the authority and responsibility of affairs domestic should be centered in one woman. Whatever may be the opinion of hospital trustees on that point, no one who has lived for a year in a hospital where the superintendent of nurses and the matron were equal in authority, and pulling in opposite directions, will sigh for a repetition of the experience.

The architecture of the hospital ward, and the general plans of the building, will have not a little influence in creating difficulties for the housekeeper and in adding to, or lessening, the burdens of the nursing staff.

Tiled floors and walls are ideal for wards, but too expensive for every hospital to have. Even five feet of tiling on ward walls is greatly to [Pg 31] be desired. Denied that luxury, as many hospitals are, the next best thing is to have the walls finished in cement or hard plaster, which, if well coated with enamel paint, will admit of thorough cleansing and disinfection.

Heavy moulding and sharp corners which afford a lodging place for dust and germs should not be there. The ceilings should be high, and ample air-space provided for the number of patients for which the ward is designed. The ventilating shafts, windows and radiators should be arranged with reference to the proposed location of the ward beds. When the hospital housekeeper can manage it, each ward will have its own linen room, with abundance of linen. It adds no small item to the number of miles a nurse is obliged to walk each day, if every time she needs a clean sheet, towel or gown she has to walk half the length or the whole length of a long hall to get it.

A little forethought and consideration for the nurse’s part in the hospital economy, in arranging the plans of the building, would result in at least avoiding unnecessary labor for those who will have no small part in carrying out the humane designs of the hospital.

Soiled Clothing

Of equal importance is it to have a “clothes chute” on every floor, connecting with the sorting room in the basement. This will render unnecessary large receptacles for soiled linen. The storing of quantities of soiled bed and body linen in the vicinity of the hospital ward for even a few hours can never be anything else but injurious. The atmosphere cannot be pure while soiled linen is there to give off its impure odors. Very dirty linen should be rolled in a separate bundle. Pins should be removed and disinfection attended to before being sent to the laundry. Clothing belonging to patients should be plainly marked [Pg 32] with the owner’s name. In most cases it will prove more satisfactory to all concerned for the hospital to decline to be responsible for laundering articles of personal wear for any patient. There is always danger of their being lost or torn.

Buying Beds

The ward beds should be of uniform height and style and well coated with enamel paint. In buying beds several important points are to be considered. If beds are offered which require two men, and a hammer, and a box of bolts and a wrench, to get them adjusted, they should not be considered, even if listed at a dollar each. They are dear at any price, when one considers the prices that prevail in the labor market, the strain on human patience, and the fuss that the moving of such a bed to another room or ward entails. It is a mistake, too, to buy beds without inquiring the length. Six-foot patients are not uncommon, and these find it very distressing when put in a bed that is too short. The bed should be at least six feet four inches in length.

In all hospital beds, there should be some kind of bar at the foot, that will keep the mattress from slipping down. Some hospitals have attempted to remedy this defect in beds by having boards sawed and placed as foot boards, but these are unsightly, and if the right kind of bed is bought such makeshifts will not be necessary. Before ordering a quantity of beds, it is well to get a trial bed, and thus be sure of the quality of mesh in the wire mattress, and that other details are satisfactory. No beds without back rests should be purchased, for in the majority of cases a back rest will be necessary. Separate back rests must be purchased and stored when not in use, and these are rarely as satisfactory as when attached to the bed.

It is well, also, to look closely into the plan of the back rest. Some [Pg 33] have a round iron rod across the lower edge If such a thing is there, a sensitive, nervous patient will discover that rod, and worry till she or it is removed.

In ordering beds it is wise always to state the height from the ground that is desired, or low beds may be sent. About twenty-four or twenty-six inches is the usual height desired. It is possible to secure beds that can be adjusted to any desired height. The disadvantage of such beds is the difficulty of adjustment so that each corner will be exactly as high as the other corners. Each one must be measured, and the moving of the wire mattress up and down on the legs of the bed, makes it impossible to keep the enamel on the legs.

By all means hospital beds should have castors, and care should be exercised to see that these castors are so constructed and adjusted that they will not fall out every time the bed is moved. There is a great difference in castors and in their durability.

For the general wear and tear of a hospital, the cotton-felt mattress is giving better satisfaction than the hair mattress, and it is somewhat less expensive. It is a good plan to have a few pads made of bed ticking thickly inlaid with cotton batting. These should be made the same size as the bed, with rings at the corners to secure them. For very filthy or unconscious patients these pads are desirable, as they can be washed and boiled as often as necessary. A couple of these pads makes a bed as comfortable as a mattress.

Bed Making

The mattress should be carefully protected by a rubber sheet securely fastened at the corners. Every nurse thinks she knows how to make a bed before she goes to a hospital for training, but as a matter of fact very few do. It is sometimes a difficult thing for the nurse to learn, but it is one of the most important of the early lessons in ward work. [Pg 34] The appearance of the ward beds, and the way in which they are made, is a good index to the character of the nurse in charge. If the spread is on crooked, the open ends of the pillow covers pointing in opposite directions, and the bed has the loose appearance of having been thrown together without method, one may naturally expect the general work of the nurse to be slipshod and unreliable. It is well to teach nurses to stand at the ward door occasionally, and take a critical survey of the ward, noting down the things out of order. A nurse who is watchful in observing signs of disorder in her ward may naturally be expected to be a careful observer of signs of disease.

Order, which is said to be Heaven’s first law, should be one of the first laws of ward work. Even the height of the curtains of the windows add to or detract from the appearance of the ward. The beds should be an equal distance apart and in a straight line. The head of the bed should never be used as a drying-place for wash cloths or towels, nor as a hook on which to hang bath robes and wrappers.

Ward Lockers

Aseptic ward tables of iron and glass are now being used in some hospitals, but it is doubtful if their use will ever be general. They answer some of the purposes of a ward table, but not all. Even very poor patients prefer to have their own combs and toilet articles, their own handkerchiefs and stationery, their own books and flowers. If some place is not provided for these numerous small things, which the average patients find it necessary to have close by, they will inevitably resort to stowing their “things” under the mattress—a custom not to be tolerated by the neat housekeeper. Good housekeeping requires that in a hospital, as elsewhere, a place be provided for everything and everything be kept in its place. Until the proper [Pg 35] aseptic ward table is invented and offered at a reasonable price, the small wooden locker, well coated inside and out with enamel paint, will continue to be used. These lockers can be made to order for a very moderate price, usually from three to five dollars each. They should be about 20 inches in width, 30 inches from the floor, 14 inches deep, and mounted on castors. The drawer should be about 4 inches deep and there should be a shelf in the lower part. A daily inspection of bedside lockers is necessary, or apple cores, fruit peelings, remnants of food, and refuse of various kinds will accumulate. All cupboards and linen rooms should have daily attention, and should be in such perfect order that the doors may be thrown open at any time for inspection without embarrassing the nurse in charge.

Care of Patient’s Clothing

The outer garments of the patient and those not needed during illness should be taken charge of by the nurse on the entrance of the patient, and the list recorded in a book provided for the purpose in every ward. Each article should be labelled, and placed in the locker in the general clothes room, and the number of the locker noted with the list of clothing in the record book. An accurate and uniform system of clothes records throughout the hospital should be insisted on. Unless this is done confusion when the nurses’ places are changed will be inevitable. Carelessness in this duty on the part of a nurse has resulted in no small discomfiture to the hospital officers. Clothing has been mislaid and not found for weeks after the patient has left the hospital, and the whole institution has been branded with negligence by the patient and his friends. All the kindness received, and the most skillful professional treatment, will often be lost sight of, if, through the carelessness of a nurse, the hospital is unable to render [Pg 36] to the patient the clothing entrusted for safe-keeping. Money or valuables should never be kept either in private room or hospital ward, but sent to the office to be deposited in the safe.

Ward Medicine and Records

Though many well-regulated hospitals have a medicine cabinet in every ward, the custom does not generally prevail, nor is it desirable that it should. The less a patient knows, sees or thinks of medicine, except the dose intended for him at the time, the better. The custom of hanging clinical records over the foot or at the head of the bed is another custom that might better be abandoned, even though it be very convenient for the nurse. Patients are only too prone to meditate upon and discuss their symptoms, in spite of all efforts to induce them to trust themselves entirely to doctors and nurses, and cease questioning and worry. Some sympathizing friend or convalescent patient may be depended upon to keep them informed when an unpleasant symptom is recorded. This will occur in spite of all rules and vigilance. It is not easy under any circumstances to keep ward patients from discussing their ailments and symptoms. Especially is this true in women’s wards. In men’s wards the newspapers are read, the political situation is discussed, city improvements and occurrences are talked about, all sorts of subjects occupy the time of those who are able to talk, but a different state of things entirely prevails in the women’s wards. What they get to eat, how they feel, and the nurses and doctors furnish the general topics there. To have a clinical record to gossip about might divert attention from the nurses and doctors, but even these long-suffering individuals would willingly sacrifice themselves as a topic of conversation rather than have the patients read the records and constantly discuss their symptoms. [Pg 37]

Adjuncts to the Hospital Ward

The tendency in modern hospitals is in favor of smaller wards, as affording better facilities for proper classification and separation of patients. A nurses’ utility room adjoining every large ward or located conveniently near two or three small wards, where medicines, clinical records, supply charts and blanks, order books and the memorandum books necessary for ward work are kept, is a much appreciated convenience in some hospitals. Opening off this room is the ward diet kitchen, where the refrigerator and food supplies for the ward are kept, and the facilities for quick preparation of special diets for individual patients.

Quiet Room

A much needed adjunct to a hospital ward is an isolation or “quiet” room, to which a patient whose presence is offensive to the other occupants of the ward may be removed. Whenever possible, a dying patient should be separated from the other patients in the ward. Gruesome tales that are disgraceful have been told of patients passing out of life in full view of the other occupants of the ward, without even the measure of privacy a screen affords. It is a melancholy comfort to relatives and friends to be with the patient in his last hours, and this cannot be permitted in a ward without confusion and discomfort to other patients. When planning a ward for the care of the sick or the poor, the object, of course, is the saving of lives, but people will die in hospitals in spite of the best skill and care, and the poor man is surely entitled to a quiet place to die in. There is much in hospital life to blunt the sensibilities of those who live in such institutions constantly. Familiarity with suffering and death robs them of mystery and awe, but it should never be allowed to detract from the reverent care of the dying and dead. “Put yourself in his place,” is a good rule to observe in dealing with even the most unworthy of Adam’s sons. [Pg 38]

Matters Miscellaneous

The ease with which the routine work of the ward goes on will depend largely on proper facilities and a proper system. There should be a regular order for the work of the day—a time for bed making, a time for sweeping and dusting and washing the ward floors, a time for the daily cleaning of the bath rooms and toilet rooms and refrigerators and cupboards. Interruptions may be expected, but unless a routine order of work is established the cleaning will be executed in haphazard style. Neither nurses nor maids can be depended on to use their judgment in such matters. If left to plan their work, they will probably be found sweeping their wards when the doctors are ready to begin their dressings, and the time for other things will depend on their ideas of the importance of the various duties. The habit of doing things quickly and thoroughly should be formed by every one who has any responsibility of the routine work of a hospital, where everything should move with clock-work precision. So much time can be wasted by lack of system, or in talking or dawdling. The untidy habit of leaving glasses or utensils dirty till a sufficient quantity has accumulated to make it a necessity to wash them, should never be tolerated.

It ought not to be necessary to mention the necessity of plenty of tools and the right kind of tools for ward work—plenty of basins, and syringes, and dressing pans, and instruments, and drinking-cups, and medicine glasses, and the thousand and one little things that go to make up the complete furnishings of the hospital ward. But, as a matter of fact, many nurses go through their course of training hampered by a lack of facilities for proper work. One set of instruments for dressing is provided, where several are needed at the same time; insufficient [Pg 39] linen to keep the beds and their occupants clean is the rule, and so on indefinitely.

Destruction of Appliances

On the other hand, head nurses and hospital housekeepers lament over the carelessness of nurses and the constant destruction of hospital appliances. Just what course to pursue with the girl who every few days puts a rubber catheter or rectal tube or nozzle on to boil, and lets it burn up; who pours boiling drinks into glass tumblers, and thereby keeps up a constant breakage; who leaves hypodermic needles without wires, and finds them useless when needed again; who breaks medicine glasses and fails to report the accident, till the head nurse finds her measuring medicine with a spoon; who puts the thermometer into the mouths of delirious patients or children, and goes away and forgets it; who lets the sterilizer boil dry; who puts glass syringes and appliances in unsafe places, and returns to find them broken—just what course to pursue to correct these destructive tendencies is an ever-recurring problem to the hospital housekeeper. Nurses who are most careful and conscientious in carrying out the doctor’s orders, and in their duties to the patients, frequently lack that fine sense of honor regarding their duty to the hospital and the care of materials. A deposit for breakage is now demanded in some hospitals when a nurse enters for training. If this is not done the nurse should be made to replace articles destroyed and to pay for repairs that are rendered necessary by her carelessness.

Proper economy in the use of hospital goods is an important lesson for nurses to learn early in their career, and one which will demand frequent emphasis throughout their course. Gas stoves are left burning when not in use, and help to swell the gas bill. Milk is left out of the ice-box, and quickly becomes unfit for use. Materials of various [Pg 40] kinds that could be utilized are thrown away. The destruction or waste of one article seems a very trivial affair, but in the aggregate such trivial affairs amount to hundreds of dollars in the course of a year. The cost of rubber sheets alone is an important item in ward expenses. The best will soon crack if folded when not in use. If loops of tape are fastened to the corners and the sheets hung against a closet wall when not in use, they will be found to last twice as long.

Screens

Plenty of screens in a hospital ward is a necessity to proper nursing. The poor appreciate privacy and refinement and delicacy as much as many of their wealthier neighbors, and they have a right to such privacy as a screen affords. The timid, frightened little woman who has just been admitted, and who shrinks from the gaze of everybody, ought to be screened off till the first awful feeling of strangeness wears away. The patient who is critically ill needs also to be screened. The general work of the ward requires the constant use of screens. One screen for every two beds is not too many for the necessities of the average ward. One of the most practical and altogether desirable ward screens is made of a wooden frame, white enameled, covered on both sides with white oilcloth. A set of clothes-bars, from four and a half to five feet high, makes a very satisfactory frame, that is large and yet light enough for one nurse to handle.

A fair equipment for a ward of twenty beds would be:

White enameled iron bedsteads, with adjustable back rests 20
Mattresses (hair or cotton-felt) 20
Spreads 40
Pillows (hair) 20
Pillows (feather) 20
Rubber pillow covers 6
Rubber sheets 20
Rubber sheets (smaller, for baths, dressings, etc.) 8 [Pg 41]
Sheets 120
Draw sheets 120
Blankets, forty pairs 80
Towels (for patients) 120
Bath towels 60
Surgical towels 80
Roller towels for lavatory and pantry 20
Bed trays (for meals) 20
Extension tables for reading, etc. 5
Stupe towels with sticks 10
Pillow covers 120
Night shirts or gowns 60
Dressing sacks or bath robes 10
Glass towels 12
Bedside lockers (with drawer and cupboard) 20
Folding screens, white enameled 12
Ward tables for nurses’ use, with drawers for charts,  
records, sheets, etc. 2
Medicine cabinet, iron and glass, white enameled 1
Dressing carriage, glass and iron, white enameled 1
Pus basins, different sizes 6
Pitchers, agate ware 3
Covered cans for sterilized water (two gallons) 2
Jars for ointments 6
Jars for sterile dressings 3
Jars for bandages 2
Jars for absorbent cotton 2
Trays for instruments (agate ware) 4
Scissors for dressings 4
Leg rests, for elevations 2
Dressing forceps 4
Probes and directors of each 4
Covers for dressings 40
Bowls and basins, agate ware 8
Solution bottles (large) 6
Receivers for soiled dressings 4
Spatulas 2
Spirit lamp 1
Graduate glasses for surgical work 3
Thermometer (bath) 1
Syringes (glass) 4
Tape measure 1
Surgical air cushions 2 [Pg 42]
Rubber finger tips 12
Foot tubs 4
Vomiting basins 6
Graduate glasses for measuring urine 2
Scissors for general use 1
Bandage scissors 1
Soap dishes 4
Saucepans, graduated sizes 6
Brooms (common) 3
Brooms, hair 1
Brooms (birch for sinks, closets, etc.) 6
Dust pans 3
Water coolers 2
Medicine trays 4
Medicine glasses (graduated) 10
Drinking glasses 12
Refrigerator 1
Thermometer 1
Corkscrews 2
Hot water bottles 20
Bed-cradles 2
Immersion buckets for limbs 1
Wash basins 8
Nail brushes 10
Combs 6
Looking glasses 4
Bed pans 10
Urinals 10
Douche pans 4
Sputum cups 10
Catherostat 1
Bedside chairs, iron, white enameled, with rubber tips 20
Wheel chairs 3
Rockers 4
Two-bowl washstand on rubber-tired wheels for doctors’ use 1

[Pg 43]

CHAPTER IV.

The Linen Room

The linen room is one of the very important parts of the institution. Demands will be made on it almost every hour, and, if the hospital is to do proper work, it must be equal to the demands. As well expect a carpenter to construct a building without tools as expect nurses to do conscientious work without a sufficient supply of bed and body linen to keep their patients in proper condition. Lack of knowledge on the part of the managers as to the amount of supplies necessary, rather than a lack of money, is accountable for the shortage of linen in many hospitals. An important part of the housekeeper’s duties is to know what supplies are on hand, and keep the board informed as to the needs. Time, and tact, and perseverance in educating them as to what is absolutely necessary for proper work, will do much to correct such defects in hospital management. It is difficult for the laity, who are perhaps accustomed to having bedding changed in their homes but once a week, and then sometimes allowing for but one clean sheet for each bed, to appreciate that a constant changing of beds goes on in a hospital, both day and night, and that economy is out of the question. A hospital can really afford to be extravagant in the matter of linen. That is one point, and perhaps the only one, in which lavish expenditure will really redound to the good of the hospital. Better cut down expense in a dozen other ways than to give rise to the criticism that the hospital has not sufficient linen to keep its patients and its beds in proper [Pg 44] condition. Cleanliness may be next to godliness in most circumstances, but no hospital can afford to let cleanliness take second rank with any other virtue. In fact, if want of cleanliness in the care of the beds or patients be noted, very grave doubts as to the godliness of the management will surely arise, be the professions in that direction never so loud.

Bed Linen

The amount of linen required per bed will depend somewhat on the character of the work done in the hospital. Where only acute cases are handled, and emergency work is done, the supply must needs be greater, as the average number of patients entirely confined to bed will be greater. Six pairs of sheets and pillow covers for each bed is a fair amount to begin with. That number of sheets is often needed for one patient in a day, but taking the average patient in the average ward, that amount will usually be sufficient, even to provide for the extra demand in special cases. A half-dozen draw sheets for each bed in the ward are also necessary. Six face towels and four bath towels per bed is a fair estimate. Two spreads for each bed and two pairs of blankets will be sufficient for the ordinary ward, but a few extra blankets should be provided for each ward, for the use of patients who require extra heat. This estimate is based on the supposition that linen sent to the laundry Monday morning will be returned at the latest by Wednesday morning following. Every well equipped hospital has its supply of gowns for the use of any patient who needs them or cares to use them. They are best made to order of firm bleached muslin, without trimming of any kind. For ease in management they should be open all the way and should fasten in the back. Tape fastenings will be found most satisfactory, as buttons are constantly torn off in the mangle. [Pg 45]

The Room

The linen room should be really a room—not a closet. Special cupboards or closets for each ward or department will be needed, but the general linen room has special needs that do not apply to the ward closets. Plenty of light is a necessity. A work-table, a sewing machine, and a gas stove on which an iron may be heated, should be in it, besides the shelves and cupboards needed for the hospital linen supply. To this room new linen should be sent to be marked.

Marking Linen

It will be found that a uniform system of marking linen will save time in sorting. Sheets may be marked on the wrong side at the corner of the top end, pillow covers an inch above the hem close to the seam, towels in the corner of one end just above the hem, table-napkins and tray cloths diagonally across the corner. Blankets and spreads may be marked by a tape sewn diagonally across the corner.

Linen Accounting

The person in charge of the linen room will be expected to keep the linen in repair and to account for every piece that passes through her hands. It is very important to have a systematic method of accounting for linen that will enable the housekeeper to know the amount on hand, and to discover if linen is lost. It matters not whether the washing is done on the hospital premises or sent to a commercial laundry, some system of accounting is necessary unless the housekeeper is willing for a constant depletion of blankets, sheets, towels, etc., to go on without her knowledge. Where a public laundry is patronized the importance of this matter is evident. When hundreds of towels and sheets are sent in at once, it is not unusual for linen to be taken from the large quantity to supply missing articles in the list of other [Pg 46] customers who had sent smaller amounts, from which, if articles were missing, it would be quickly discovered. The housekeeper of a certain institution relates the following incident bearing on this point: The linen of the institution was sent to a public laundry, and for some time she had been missing towels, though the laundry always claimed to return the proper number. Finally the manager of the institution happened into a barber shop and accidentally discovered there a pile of the institution towels. Inquiry revealed the fact that the barber kept strict account of his towels and the laundry had to return the number sent or pay for them. The barber cared nothing whose mark was on the towels if he got as many as he sent. A laundry employee had been in the habit of substituting linen from large institutions to make up the required number from smaller lots, and thus the problem of the missing linen for that institution was solved. The inexperienced housekeeper may perhaps settle down into the belief that of course the linen sent to the hospital laundry is safe since it does not leave the premises. If all servants and everybody about the establishment were tried and true and trustworthy, through and through, it might be safe, but in these days of possible degeneracy and certain uncertainty in the servant class, it is wise to trust implicitly but few, and to keep an eye on those.

Discarded Linen

Another point that needs some emphasis is that the housekeeper or her assistant—not the nurses or the servants—must decide when linen is to be discarded. Well-worn or torn linen should not be sent to the wards. A special drawer, marked “Discarded Linen,” should be in the general linen room, and into this the one who sorts linen can lay aside what in her judgment is unfit for wear or beyond mending. But the housekeeper should reserve for herself the privilege of deciding when an article is [Pg 47] to be used as old linen. Unless this rule is rigidly enforced, a reckless extravagance will be the result. Good towels will be used as dusters or as scouring cloths. Sheets that might have been utilized in some other way will be torn up and used as cleaning cloths, and a constant depletion of the supply will go on without the housekeeper’s knowledge. Many a housekeeper who has assumed charge of a hospital that had been previously managed without a system of linen accounting has found it one of the most difficult of her tasks to check the tendency to appropriate the hospital towels, sheets and pillow covers for cleaning purposes. Constant vigilance in that direction for months was needed to impress the household that the haphazard, loose way of handling linen was a thing of the past.

Emergency Supply

Every careful hospital housekeeper has found the necessity of a special closet, for the storing of extra linen of all kinds for times of special emergency. It is poor management to have the full supply in circulation at one time. Attention to this emergency closet will save embarrassment many times. What could be more embarrassing than to have a patient injured in an accident, brought in grimy and dirty, and not have a clean gown to put on him? And yet that very thing has happened when the hospital housekeeper has failed to anticipate the emergency.

Sheets that are worn thin in the center may be doubled and stitched together for draw sheets, and in that way will last for months. The ends of bath towels can be hemmed for wash cloths. Squares of linen from partly worn tray-cloths and napkins may often be fringed for doilies for ward medicine trays. The training in economy in supplies, and in methods of utilizing material that would otherwise be wasted, is an important part of the nurse’s training that will benefit her through life. [Pg 48]

Removing Stains

The nurses, too, in their use of hospital linen, are responsible in no small measure for its appearance. Blood-stains and various other stains can be readily washed out when the stain is fresh. Every nurse should be taught that it is her duty to remove such stains as far as possible by a preliminary soaking and washing before being sent to mingle with other clothing in the laundry. A little salt in the water will hasten the process. If such matters were thoroughly impressed on each nurse, as a part of her duty in her hospital training, there would be fewer complaints of nurses in private practice needing an extra maid to wait on them. Stains from certain oily dressings are exceedingly difficult to remove. In fact, in the general washing it is practically impossible to thoroughly efface such stains. A little care in managing, and, as far as possible, keeping one set of sheets for cases requiring such dressing, will prevent the whole ward supply from being stained. The oldest linen should be specially set apart for such cases.

New Linen

Where a regular maid is in charge of the linen room, she can usually, in addition to the general care of the linen, make up new material. The cutting of new goods is a matter for the housekeeper’s personal supervision. Each new lot of linen that is laid on the shelves for general use should be added to her inventory. Under the heading of “Discarded Linen” in her linen account book, she can mark each piece she lays aside as old linen, and by reckoning up each month the new linen that is added, and the discarded linen, can readily keep account of the amount in general use. In buying linen for a hospital it is questionable economy ever to buy cheap material. Towels and spreads should always be without fringe. [Pg 49]

Shelf Management

In placing linen on the shelves of a general linen room some method will be found advantageous. If the rule is to lay towels and pillow covers on the shelves in piles of twenty, sheets and spreads and gowns in piles of a dozen, it is but the work of a few minutes to take an inventory of the contents of the linen room. If, in buying linen, the housekeeper has taken pains to secure glass towels with some distinctive pattern or coloring, it will be easy to keep the kitchen, diet kitchen and ward glass towels in separate piles. Red and white check toweling for the kitchen, blue and white check for the diet kitchen, and plain white toweling with a single stripe on the edge, for the ward glass towels, is a distinction easy to secure in any place. Face towels for patients can be secured with red border and for nurses and officers with blue.

Laundry Bags

Each nurse should be instructed to bring with her two laundry bags—one to be kept in her room to receive soiled linen, the other to be sent to the sorting room, to remain till the clean clothes are returned in it. A list of the articles contained should be pinned to each bag to facilitate the sorting of the clean clothes and for reference. It is needless to state that all nurse’s clothing should be marked with her full name. Initials may be sufficient marking in a home, but are useless in a hospital. If it can be brought about (and it can by insisting on it), it will be found that a uniform system of marking nurses’ clothing will be a great saving of time in sorting. To have a pile of thirty or forty nightdresses to sort and put in bags, and find no two marked in the same place, making it necessary to unfold every garment and look it over on all sides to find the mark, is an unnecessary trial and waste of time for whoever has the sorting to do. If each garment were marked on the under side of the front, which is [Pg 50] usually folded on top, to sort them would be an easy matter. To return clothing without being washed, when the nurse has not marked it properly, is the only way to teach nurses, who are habitually careless in their marking.

Printed laundry lists should be furnished for the sorting room, duplicate lists of each lot of clothes sent to the laundry being made. One list goes to the head laundress, the other is retained in the sorting room for reference.

HOUSEKEEPER’S LINEN ACCOUNT BOOK

 Date     Supplies Purchased     Supplies Received     Value     Remarks  
         
         
         
         

[Pg 51]

CHAPTER V.

The Hospital Laundry

Perhaps no part of the hospital housekeeper’s domain will call for a greater expenditure of her energy and patience than the laundry. Though out of sight, its results are always in evidence, and failure in the laundry means that every part of the work of the establishment is handicapped. There may be abundance of linen to meet the needs of the hospital, and yet if constant supervision over the work of the laundry is not exercised, three-fourths of the linen supply may at times be found piled in the laundry, the linen room shelves empty, and the nurses flying hither and thither on borrowing expeditions when a clean towel is called for.

A wise philosopher has said, “Every man is as lazy as he dares to be,” and the average laundry employee is like the rest of the world in that respect. Few of them love the work for the work’s sake, and if the weekly wage is not sufficiently large to be attractive, they will be lazy and neglect their work if they have opportunity.

Manager’s Duties

A competent manager for the laundry is essential for successful work, especially in a large institution. This person should know how to manage his staff of helpers so as to secure the best possible service, and should have a knowledge of the needs of the institution where his own department is concerned, and of the work that is important to be done without delay. Good common sense in arranging the time when the [Pg 52] different parts of the work should be done, will prevent much trouble in any laundry. Nurses’ clothing and articles not in constant demand, that are returned but once a week, can be laid aside to make way for the things in constant demand. When once a competent manager is secured, the buying of supplies may be safely entrusted to him.

But, unfortunately for the hospital housekeeper, few except the larger hospitals can afford the luxury of a skilled manager for the laundry. A head laundress is the nearest they can approach to such a luxury, and even that much needed individual is often out of reach. In many cases the hospital housekeeper, in addition to her other duties, has really to take the place of manager of the laundry.

Where several laundresses are employed, and none are fitted for directing the work of others, it is a wise provision for the housekeeper to personally divide the work and assign it, and have each laundress responsible to her. The servant problem has assumed such an acute form that it requires delicate handling in any household, and where the character of the work is as important as that of the hospital laundry, every possible tendency to friction should be avoided.

Laundry Workers

Let laundry workers understand fully what their hours of work shall be, and that they are expected to be in their places promptly at the hour. Explain the importance of having the supplies for the wards and operating rooms constantly kept up to the mark, and also the linen for the trays. Prohibit visitors during working hours. It is always better to make such prohibitions when engaging help rather than wait for some occasion to call it forth. The occasion will certainly come unless it is anticipated and prevented. Make some provision for them to do their [Pg 53] own personal washing, and let it be plainly understood they are not to take in washing from other sources to increase their income. That is sometimes tried and carried on very successfully, if it is found that the laundry has not careful supervision. If it is not desirable for their own washing to be done in connection with the hospital, then a time must be arranged for it.

Where the laundresses are mothers of families, as is often the case, this point is worth mentioning at the time of engagement. Their washing must be done—the question is, when and where. It is better to have a plain understanding about the matter than to have them attempt a course of deception. Feed the laundresses well and arrange for them to make a cup of tea or coffee between meals if they want it. The work is hard and exhausting, and they cannot put their best into it if they are hungry. Take an interest in their health and see that their minor ailments are attended to when necessary. Arrange for an afternoon off at least once in two weeks. They have little matters of business to attend to, and they need the recreation as much as other people. Arrange to visit the laundry at least every day—twice a day if possible, and not always at the same hour. Commend their work and their promptness when there is room for it. A word of appreciation will often do more to inspire them to better service than a severe rebuke. When they have worked overtime in some unusual rush, do not forget to mention your appreciation of it. Then see that they have proper things to work with. It is impossible to have satisfactory service if proper facilities are not provided. [Pg 54]

Starching

The housekeeper, where no manager of the laundry is employed, will have the purchasing and giving out of supplies and should have an idea of how much is needed for each week’s work. Provide a good quality of soap and starch. The cheaper grades are almost always more expensive owing to the additional amount necessary for the work. The better grade of starch will produce better finished work. See that the vessels used for starching are well cleansed after use. Know something about the methods used in starching. If collars, cuffs and belts are not stiff, inquire the reason. To produce a proper stiffness, the starch should be used as hot as can be borne by the hand, and well rubbed in. Clothing that is starched should be put to dry as soon as the starching is completed. If left around in baskets the articles will inevitably come out discolored. It is well to give a list of the articles requiring starching rather than trust to their judgment. Aprons and coats for the operating room that are to be put in the sterilizer need no starching, while other aprons and coats must be starched. They will not know the difference if they are not told.

Bluing

If the clothes are streaked with blue, make some inquiries into the washing process. It may be the clothes have not been rinsed thoroughly free from soap. They should pass through at least two rinsing waters (three is better) to free them from soap. The first rinsing water should be quite hot. The bluing should be done in plenty of water, so that every part of the garments may be under water. In preparing the bluing water see that the blue is dissolved in a separate pail before being put into the vessel in which the articles are to be blued. In mixing the bluing water, it is easy for parts of the vessel to become deeply stained with the strong bluing solution, which will be rubbed into the clothes and leave streaks. When plenty of soda is used to soften the water there will be less trouble with black specks from the soap. Impress on them the fact that the nurses’ uniforms and colored [Pg 55] shirt waists are not to be boiled. If the uniforms are thoroughly soaked over night in a strong salt solution they will retain the color better. When uniforms are dried in the open air see that they are hung wrong side out.

Special care needs to be used in washing blankets. They should be dealt with separately and gotten through with quickly. The suds should be quite hot and a little ammonia added. The rinsing should be in water of the same temperature and they should be dried in the open air.

Drying

Whenever possible have all the hospital clothes dried in the open air. No drying room, however well constructed, can compare with nature’s process of drying by fresh air and sunshine. The best method of bleaching is by the use of the sun rays while the clothes are wet. However, in planning for laundry work, it is never wise to depend entirely on open air drying. An artificial dryer is a necessity where promptness is required. Quick drying is essential to good work. Where bad work is done, the trouble is oftener in the washing than in the drying.

Ironing

In planning for the ironing much may be done to facilitate the work. Little labor-saving devices can be introduced which will increase the amount of work done in a day. Ironing boards of special shapes, and for special purposes, and tables of various designs can be had for a trifle and will result in a saving of time and more finished work. A box of thin pine boards with a hinge cover and with perforations in the sides is a convenient receptacle for storing dampened clothing waiting to be ironed. See that they have proper irons for the different parts of their work and that they have wax to use as needed. Supply unbleached muslin for ironing sheets or the hospital sheets will be found covering the ironing boards. Instruct them to keep their ironing sheets clean. [Pg 56] Well-finished work cannot be produced on a dirty ironing sheet.

Routine of Work

Let the laundresses understand that bad work will not be accepted, and they will not send it. Bad work that was passed in the linen room has often caused embarrassment in the operating room. As far as possible, have a routine order for laundry work, and expect the laundresses to comply. If they understand that clothing sent from the wards on Tuesday morning must be returned to the wards not later than Thursday morning, they can arrange to have it done, while if no limit is set for the clothes to be in the laundry, the haphazard results will be constantly felt in the wards.

Have a method of folding linen and insist on that method being followed. It is impossible to have neat-looking shelves in the linen room if no uniformity be observed about folding in the laundry.

Then see that the work rooms are kept clean. It is useless to expect clean linen unless the laundry and its furnishings are kept in proper condition. The woodwork and windows and floors should be as scrupulously clean as any other part of the hospital. But they will not be kept so unless a time is set for the cleaning, and someone sees that it is done.

Greasy towels or clothes, from the kitchen, pantries and bake rooms, should either be entirely washed by those who use them, or have a preliminary washing before being sent to the laundry. Such articles cannot be washed with any other clothing; a special suds must be gotten ready and time spent that would have counted for more if spent on other work.

A false economy in planning a hospital often results in a space entirely inadequate being set apart for the laundry. As the general work of the hospital increases it is then found impossible to meet the [Pg 57] demands, and recourse has to be had to the public laundry—always an expensive arrangement. Another common mistake, is to place the laundry in the basement, where lack of light and air is always a hindrance to good work. Whenever possible, the laundry should be located in a separate building, where plenty of light and air and sunshine can penetrate, and where there is room to separate the clothing while in its different processes and proper work can be done. All clothing should be well aired and thoroughly dry before it leaves the laundry, so that it may immediately be placed on the shelves for use.

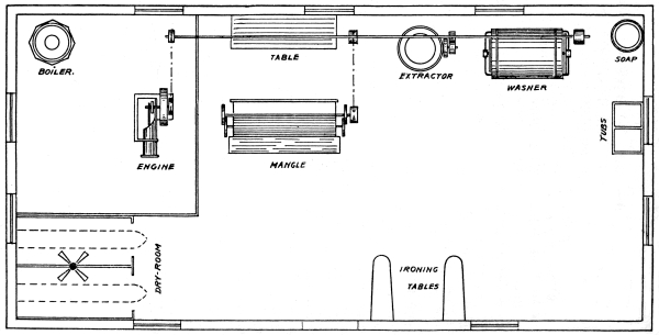
The Laundry Plant

It is difficult to give an accurate estimate regarding the cost of installation and operation of a laundry plant, as conditions vary greatly. A list of the articles required for a plant capable of doing the work of a sixty-bed hospital is appended. In preparing this list the elimination, so far as possible, of all expensive features, has been attempted. A laundry plant, like nearly everything else, can be figured on in various ways, and at largely varying cost, so that, with different machines, a plant with the same amount of machinery will cost three times as much as another of practically equal capacity and actual working value. It is well, therefore, before purchasing a plant, to be thoroughly informed regarding the actual needs of a hospital, the various makes and grades of machines, cost of operating, etc.

A very serviceable laundry equipment for a hospital of fifty to sixty patients, is made up as follows: [Pg 58]

One 12 h. p. vertical boiler, complete with suitable injector and regular boiler trimmings.

One 6 h. p. horizontal engine, complete with all engine trimmings, and a sight feed lubricator.

One 36 × 30 wood washer.

One 20-inch solid curb extractor, countershaft attached.

One 40-gallon galvanized steel soap tank, with circular boil pipe.

One sectional dry room, arranged to handle plain or fancy clothes, and complete with three metal trucks, ventilating fan, etc.

One 66-inch steam mangle.

One 30-inch reversible body ironer.

Two ironing tables.

One truck tub.

This outfit will cost about $1,100 to $1,200, including pipes, pipe fittings, valves, shafting, etc., and will require a floor space of about 24 × 48 feet. The accompanying diagram gives a good idea of an economical arrangement of such a plant.

In one institution having about one hundred patients, a plant similar to this is used. All the work is done with two women and one man, the man looking after the power and the washing. If the hospital employs a man who can look after the power for two or three days in a week, the cost for help may be reduced.

Where the laundry work of a hospital runs up to $750 or $1,000 a year, there are but few instances where a direct financial saving will not be effected by the hospital operating its own laundry plant. [Pg 59]


[Pg 60]

CHAPTER VI.

The Hospital Kitchen

With the advance in science, and a better knowledge of things desirable and things avoidable in hospital construction, a gradual change is taking place in institutions designed for the care of the sick. Perhaps in no department have greater changes taken place than in the construction of the modern hospital kitchen. Instead of being located in the basement, where odors from cooking were diffused throughout the whole building, and where absence of light invited the accumulation of dirt, the kitchen is now located in the top story, or, if the hospital be built on the cottage plan, in a separate building. In deciding on the location, one thought should be prominent—the possibility of conveying cooked food without delay to those for whom it is prepared. With proper facilities for keeping food hot, this important point is not difficult of accomplishment.

General Construction

Wherever the kitchen is located, it should be large, light and thoroughly ventilated. Proper care in planning and construction will insure the installation of vent flues and ducts to carry off smoke and odors, as soon as generated. As far as possible, the interior of the kitchen and its furnishings should be constructed of non-absorbent material. Those who have had experience with cement floors claim for them that they are splendidly absorbent of grease, exceedingly difficult to cleanse, and liable to crack, thereby furnishing crevices [Pg 61] for the deposit of dirt of all kinds. Therefore, in a hospital designed to be thoroughly sanitary, cement floors will have no place. Tile seems to be the material that gives the most general satisfaction for kitchen floors and walls. A white vitrified tile, laid on a heavy foundation, having the joints between the tiles carefully sealed with cement, gives perhaps the nearest to the ideal kitchen floor yet attained. If the floor is constructed so as to slope gently toward a drain properly trapped and protected, the cleaning will be facilitated. The side walls and ceiling of glass tile, with the corners well rounded, gives a surface that is not only bright and beautiful, but thoroughly sanitary. Such a finish will endure the most severe cleaning without injury. Wood mouldings, that invite the deposit of dust, will of course be avoided.

The sinks in the hospital should be placed at sufficient distance from the walls, so as to be accessible on all sides.

Kitchen Cabinet

A hygienic outfit for the hygienic kitchen is of course essential, but sometimes more difficult to secure than is the sanitary room. Dressers and drawers for the accommodation of the kitchen utensils must be provided, and in these things crevices and angles and dark corners and all sorts of complications of this character seem unavoidable. If these cabinets could be of metal, all angles and corners done away with by the finishing with curves, the shelves loose fitting and easily removable, it would be a decided advance in kitchen arrangements. The drawers could be made in the same way, the emphasis being on the point “easily removable.” Thus constructed, the person in charge would find it easier to remove them than to undertake to clean them while in position.

Architects say, that in hospitals where steam boilers and engines for supplying power for elevators, electric lights, laundries, etc., are in [Pg 62] use, arrangements should be made to utilize for cooking the large amount of exhaust steam, that ordinarily goes to waste. When this is done, ashes, smoke and their attendant ills can be avoided. The hospital may then be not only “a thing of beauty,” but “a joy forever,” and the drudgery of that department greatly reduced.

Through the courtesy of Mr. W. J. Palmer, architect, of Washington, D. C., we are able to present drawings for a hospital kitchen embodying most of the features above mentioned. The drawings were designed for a kitchen located on the ground floor in a separate building, but with a few changes could be easily adapted to a kitchen located on the top floor. The range is located in the center of the room, with steam tables on each side to keep the cooked food hot. A gas range is provided and a chopping block, tables and dressers are arranged conveniently for work. On one side is a small pantry, which leads to the vegetable cellar beneath, and adjoining it is the main diet kitchen. At one end is the serving room, where the food is divided and dispatched to the wards. Leading from the serving room is a hall, off which on one side are the cooling rooms, and on the other side storerooms for staple supplies. If the kitchen be on the top floor, a cooling room on that floor, sufficient at least to care for one day’s provisions, will be necessary, having the main cooling rooms located on the main floor or in the basement.

Cold Storage

A good cooling room, in which can be stored large quantities of the perishable supplies, has now come to be regarded as essential to economical housekeeping. The size of the cooling room will depend on the size of the hospital, but there are special features which should always be kept in view, and which can be had in cooling rooms of any size. One important point is to have it so constructed that the ice can be put in from the outside, if it is not manufactured on the premises. Every cooling room needs to have three departments—one large section, well arranged with meat hooks and shelving for meats, one with plenty of shelf space for vegetables and fresh fruits, and one for milk, butter and eggs. The separation of these articles is highly important. Vegetables and fruit will taint milk and also meat, and meat alone will injure milk. The best goods that can be purchased will quickly deteriorate unless properly cared for, and in a hospital, where the most capricious appetites have to be catered to, the keeping of the edibles sweet and fresh is of the utmost importance. [Pg 63]

[Pg 64]

The Storeroom

The storerooms should be light, well ventilated, cool and dry. The shelving, if arranged in sections in the central part of the room, similar to the arrangement in libraries, will be much easier of access and more easily kept clean. Labeled receptacles, with covers for all the varied commodities used in the domestic department, should be provided, thus rendering it unnecessary to store supplies of any kind in paper sacks. A special closet for canned fruit will also be needed. Provision should be in the kitchen for the care of such supplies as are needed for each day.

Dishwashing

Dishwashing, that bugbear of every household, is not less a task in a hospital than elsewhere. In fact, it forms a very large part of the work of the institutional kitchens. The use of mechanical dishwashers has not yet become general, and it is doubtful if any but the largest institutions will deem it necessary to adopt them. Those who have had experience with them as a rule find them satisfactory, and comment [Pg 65] especially on the saving in breakage and time. Provision ought to be in every hospital kitchen for handling dishes in large quantities and the adoption of a routine method of dishwashing will do much to prevent confusion and simplify the task. If each floor has its own kitchen and diet kitchen where the ward dishes can be washed and kept, the labor in the kitchen will be greatly reduced and fewer servants in that department will be necessary; and this is perhaps the better way. The frequent handling of dishes that is necessary, when the supply for the whole household has to be sent to and from the main kitchen three times a day, adds greatly to the breakage, and results in increased labor and loss of time. But in this matter, as in many other lines of hospital work, the housekeeper’s methods are modified by the construction of the hospital. If no facilities are provided on each floor for washing the dishes, there is no alternative but to send them to the main kitchen to be handled there. The real work there may be greatly facilitated if in cleaning and packing the trays, care has been exercised in separating the different articles. The silver should be collected on one tray, the fragments placed by themselves on another, the dishes carefully scraped and packed, the tray-cloths shaken and folded together. The maid in the kitchen receives them from the dumb waiter as they are sent from the different wards. The silver and glass and delicate china should be placed together to be washed first, the heavier china and greasy dishes on a separate table, and when all are collected the washing begins. The water for the glass and fine china should not be too hot, and these should be finished and put away before the washing of the silver is begun. But few servants can be trusted to properly handle delicate china and glassware without supervision, and the all too prevalent custom of piling a large draining dish full of delicate articles is the [Pg 66] cause of constant breakage. A draining rack, constructed with grooves, and fitting on one edge of the sink, is a much appreciated convenience in many hospital kitchens. Every housekeeper has her own theories of proper dishwashing, and all are good if the result is clean dishes. The main point is to have a system of preparing the dishes for washing and adhering to it; without system the disorder and confusion in the kitchen when all the trays are sent in will disturb the most saintly individual. A limit to the time when dishes may be sent from the wards is also essential to methodical work. Much unnecessary delay and unpleasant feeling is often caused by the late arrival of a consignment of dirty dishes which should have reached the kitchen an hour or two before. The carelessness of those in charge of the ward dishes results in upsetting the arrangements of the other work of the kitchen, the maids who had finished their task having to gather together their dishwashing utensils and begin over again. To require that the delinquents assume the responsibility of washing all dishes not sent to the kitchen at the proper time will do much to prevent the repetition of this unpleasant occurrence.

Dishcloths and Towels

Much care needs to be used in the handling of dishcloths and towels. Plenty of towels should be provided, and dishcloths should be washed and scalded after each meal. It is impossible to have clean, shining dishes if these are not kept thoroughly clean. The tendency for kitchen towels to disappear may be overcome by the housekeeper requiring each maid to state the number necessary for her work, supplying them, insisting that each put her special mark on her own towels, and requiring that the old towels be produced before new ones will be given out.

The Chief Kitchen employee

In selecting a chief employee who will be responsible for the direction of the details of the work, and for the care of the kitchen and the [Pg 67] other rooms in her department, several points need to be considered. She should not only be familiar with methods of preparation and cooking, proper carving and serving of food, but she should know how to keep herself neat during the process. Neatness and cleanliness about the person of the workers in the kitchen is fully as essential as neatness in the care of the room and utensils. In fact, one who is not neat in person cannot be trusted to observe the rules of cleanliness anywhere. “Doing” is dependent on “being,” here as elsewhere.

Training Needed

The secret of success in the kitchen is the same as in other departments of the institution, and, indeed, of life in general. It can be spelled in one word—s-y-s-t-e-m; and be it understood here and now, that system and red tape are not synonymous terms. Just as in a large department store, every yard of ribbon sold has its relation to the whole establishment, or in a great railway system every train dispatched influences the running of every other train, and system is necessary to insure the success of the business or the safety of human lives, so in a hospital every part is vitally related to the great whole. Some mind must plan the details, first of the whole and then the minutæ of the different parts as they contribute to its harmony and success. And yet, while this truth is generally admitted, and its importance is evident, how little training does the average nurse of the present day receive to fit her for the responsibilities of hospital housekeeping—that on which much of the comfort and well-being of the whole institution depends. Most graduate nurses can nurse, they can care for a patient afflicted with an ordinary disease in a satisfactory manner, but how much have they learned regarding the management of the [Pg 68] household? How much have they been taught regarding the purchase of supplies, the care of food, the management of the linen room, the laundry and kitchen, the supervision of servants, and other matters of vital importance to every hospital? Is there not much still lacking in our present system of training? If a railway company sent an engineer to conduct a train to its destination as ignorant of, and inexperienced in, the working of the whole train system as some graduate nurses are, who have the responsibility of a hospital, small or large, placed upon them, the public would raise its hands in horror, and brand the railway officials with criminal carelessness. While present methods continue, the success or failure of the nurse as an executive officer and housekeeper depends largely on the thoroughness of the domestic training she received from her mother, her own native ability, and her intuitions as to how things should be done—not on the training received in the average hospital. When the nurses’ course includes practical instruction in the management of every department of the hospital, the purchase of supplies of all kinds and simple accounting, the public, with the nurses, will reap the benefit. In large institutions stewards may be employed, or it may be possible to secure a trained housekeeper from some institute of domestic science. But in the small hospital the superintendent must be her own housekeeper; such superintendents must almost of necessity be nurses, and there ought to be time in a three years’ course to give them some insight into, and experience in, the details of hospital housekeeping.

The Diet Kitchen

An advance step has been taken, however, in the introduction of cooking into the nurse’s course of study. The nurse’s work in the diet kitchen ought to mean a lightening of some of the burden in the main kitchen. [Pg 69] The custom of management of this department varies and each institution must work out its own problems. Where there is a regular dietitian in charge, with the diet kitchen work as her exclusive business, the matter is easier of adjustment. Where this is not possible two nurses may be assigned for this special duty, making the term of service two months. The junior nurse may thus be initiated by the senior diet nurse, the housekeeper having general supervision of the entire work. The value of this practical experience in cooking can scarcely be overestimated, for unfortunately a great many young women enter a hospital with no more definite idea of how to prepare food for invalids than they have of medicine or surgery. In order that this course in practical work be productive of the most good to the nurses, previous instruction in the principles of nutrition, food values, and in the processes of digestion, should be given. Valuable, however, as the diet kitchen work is in the nurse’s education, unless it is arranged that that department assume a certain responsibility for preparing a part of the hospital dietary, its introduction is hardly justifiable. In most cases the diet kitchen should furnish at least the special diets and desserts, all broths, jellies, etc. If the diet kitchen facilities are adequate, it may be wise to have all the cooking for private patients done in this special department. In this way it is possible to devote more attention to attractive arrangement of food, as well as more care to its preparation. Where the housekeeper has a real interest in the people for whom the food is prepared, and has cultivated the fine art of cookery, or has a degree of native ingenuity, many delightful dishes may be constructed even of odds and ends, and a variety secured out of very little. The very first essential to proper feeding is good [Pg 70] cooking, and this, like most other expert service, is an economy rather than a waste. For this reason many institutions that have tried both methods claim that the employment of a trained chef at a good salary was really a saving to the institution when the total cost of the culinary department was reckoned. This is in comparison with the old method of having the cooking done by women who had received no previous training, and had no special desire to study the art of cooking or to become more proficient in it.


[Pg 71]

CHAPTER VII.

Purchase and Care of Food Supplies

The person to whom is entrusted the purchase of the food supplies, and the direction of the general dietary for the hospital household, occupies a place of no small responsibility. If she is to discharge this duty to the satisfaction of those who have the interests of the institution at heart, she should have a few marks of fitness not found in the average woman.

First, she should have an active, intelligent and sympathetic interest in the welfare of both the sick and healthy members of the household, and be in perfect harmony with the humane designs of the institution.

Judging Values

Second, the purchaser of the food supplies should have sufficient experience and knowledge to detect superior and inferior qualities of the different food stuffs. So far as the food for the sick is concerned, the physician will have the responsibility of deciding the kind of food his patient shall have, but she will have the responsibility of deciding regarding quality and preparation. It does not require an expert to discover that a beef steak is tough when it comes to the table, but that is too late for the discovery to be of any practical value. The toughness should have been detected while it hung in the market. So it is with all varieties of food. To know the desirable and the undesirable qualities before purchasing is to possess one of the chief secrets of successful buying. Clever buying does not [Pg 72] mean close buying, though some people think it does. The cheapest article often proves the most expensive, and quality must be paid for. The point is to be able to recognize, and not pay first-grade prices for second-grade goods.

Third, she should keep posted regarding the fluctuations of the markets, and not have to depend entirely on what one dealer may say regarding prices. As she is spending, not her own money, but funds often accumulated by self-denial on the part of givers, she needs to study to spend them wisely.

Fourth, she should make a point of finding out the exact price of most articles before ordering them. Strawberries would be appreciated by her household at any time in the year, but while they sell at thirty or forty cents a box, she is hardly justified in buying them freely, if at all. And this rule holds good in regard to most of the ordinary so-called luxuries—the things that are not absolutely essential as nourishment. There is a time in which she can decide to have them, and also a time to decide to do without.

Fifth, she should have an intelligent conception of the relative nutritive values of different foods, so as to be able to supply a well balanced dietary for the different classes of people who are dependent on her very largely to direct what they shall eat. She ought to bear in mind the fact that the chief value of any food lies in its adaptability to repair the waste of tissue that goes on constantly, and endeavor to supply as far as possible the ideal meal, which is one in which nitrogenous, non-nitrogenous and mineral substances are supplied in the proportion required to repair the waste, and with the minimum tax on the digestive powers.

The first qualification really includes three different qualifications—common sense, conscientiousness and justice, for all of [Pg 73] which she will have constant need in discharging the duties of her position. Probably in beginning her work she will make mistakes, as every one who accomplishes anything does, but as she buys she will learn to buy, and in no other way. It cannot be learned from books. However, suggestions may be given and accepted that will save the housekeeper from making all the blunders others have made, and save the hospital from the results of total inexperience and lack of knowledge.

The amount of supplies of any kind to be purchased at one time will depend somewhat on the demand, but chiefly on the facilities for storing and preserving them. The perishable articles are always the most important, and also the most expensive, and whenever possible she will find that a substantial sum may be saved each month by making cash payments for these articles as purchased. With adequate cold storage arrangements, a month’s supply can be purchased at one time. Hand to mouth, or day to day buying is poor policy for any hospital, though lack of facilities for proper preservation of food often gives the buyer no other alternative.

Bread

Among the chief staple foods of any institution is bread. While with many in the hospital it is not exactly the “staff of life,” yet it is perhaps the one thing in demand for every meal of the major portion of the household, and fills no small part in the hospital dietary. Various forms of this important article are on the market, differing in the variety and quality of flour used and in the process of manufacture. Three principal varieties ate in common use in this country—the fine-wheat bread, made from the finest or so-called straight-grade flour, the Graham bread, made from flour containing the entire grain of the wheat ground together, and the whole-wheat bread, made from flour containing the whole substance of the grain except the outer layer of [Pg 74] bran. From a chemical analysis of the three different varieties, to ascertain the nutritive value and digestibility, it was found that the fine-wheat bread yielded the highest percentage of digestible nutritive food, the whole-wheat ranking second and the Graham bread the last. In providing bread for the household it is well to supply at least two varieties, the fine-wheat as the staple and the whole-wheat and Graham alternating. Another point worth noting, proven by the same chemical analysis, was that the digestibility depended more on the lightness of the bread than on the quality of flour used.

The question as to whether home-baked or baker’s bread is most expensive is often asked, and the answer almost invariably is that bread can be baked in the institution at much less cost than to purchase the ready-made article. The U. S. Department of Agriculture in 1900 published the result of investigation regarding the market value of bread. Their investigation showed that in some places the baker’s price was set by the trade name of the bread, and in others by the size of the loaf, and that the prices varied greatly in different cities.[1] “In New Jersey it appeared that the larger the loaf, the higher the cost per pound tended to rise. In New Brunswick, where fifty analyses were made, the bread containing the highest amount of nutriment, and that containing the lowest, were sold at exactly the same price per pound, 4.1 cents. When the selling price of bread and the cost of its ingredients are compared, the results are still more striking. In two experiments made in New Jersey it was found that two lots of bread made from materials costing respectively $2.28 and $2.56, were sold for $5.68 and $6.08. This represents a profit of 116.5 per cent over the [Pg 75] cost of the materials, or to put it in dollars and cents, the baker received $216.50 for bread whose materials cost him $100. In Pittsburg, the average increase in price over the original cost was 110 per cent.”

[1] U. S. Dept. of Agriculture, Office of Experiment Stations, Bulletin 112.

From these experiments it will be seen that a great saving of money can be effected by home baking, even allowing for the extra cost of labor and fuel.

Milk

Another of the important articles of diet, and one that has special value in a hospital, is milk. It is the one article of diet that contains all the essentials for nourishment and because of its perishable character it is the food that usually causes the greatest anxiety to the housekeeper. In order to determine the amount required for each day’s consumption it will be necessary to decide, before ordering, the demands of the bills of fare for the different departments for the coming day. This is essential for even approximate calculation. The constant changing of patients and diets that goes on in a hospital makes a close calculation scarcely possible. The evening of the day before the supply is to be ordered, the head nurse in each section should submit her diet list, showing the number of patients on liquid, semi-solid, light and regular diets. For a patient on an exclusive milk diet, from two to three quarts per day will be needed, the amount being modified by the age, sex and general condition of the patient. Where the liquid diet includes broth and other fluids alternating with milk, two to four pints will be needed. Each patient on a semi-solid diet usually requires nourishment between meals, and as milk enters largely into the composition of the semi-solid diet, about the same amount will be necessary as for liquid diets. For patients on light diet who must have nourishment in some form between meals, a quart is a fair daily allowance, and a pint for those on regular diet and for the household staff. [Pg 76]

The quality of milk is a matter of paramount importance. The proportion of fat or cream in milk from the same cow will vary somewhat from day to day, but there is no doubt that the most frequent cause of variation is found in the unscrupulous methods of some dairymen. Three principal methods of adulteration are used: water is added, cream is removed, and certain chemicals are added as preservatives. Whatever form of adulteration is used, the results are bad. Whether water is added or the cream removed, the nutritive value of the milk is lessened. The injurious effects of chemically preserved milk depend, of course, on the amount consumed by one person. The drugs most frequently used as preservatives are boracic acid, borax, salicylic acid and formaldehyde. Where a life is in the balance, and milk diet is depended on to maintain the vitality, these adulterations are of tremendous importance. No housekeeper can afford to patronize a dairyman where there is a suspicion of these methods being practiced. Laws regarding adulteration exist in many places, but are not always enforced. But pure milk can be produced, and if the consumer insists on having it, and takes pains to find out at intervals the facts regarding its purity, the milk dealer will arrange to supply the genuine article. In purchasing from any dealer it is a safeguard to have the milk examined periodically by an expert chemist. Then the housekeeper may know for a certainty what she is getting. Milk which contains sediment is always suspicious. In preparing a specimen for analysis care should be taken that it is a fair sample. Milk from the top or bottom of a bottle should not be used. If the milk to be tested is poured several times from one vessel to another until no particles of cream appear on the surface, the sample may be considered to be a fair specimen of the composition of the whole. [Pg 77]

The method of computing the value of milk used by creamery experts is on the basis of the amount of fat contained. If this basis were the general standard, not only hospitals but all consumers would be the gainers. While the actual food value of milk does not entirely depend on the amount of fat, yet the buyer would have the satisfaction of getting what he paid for, and the dealer the increased return for supplying a better grade article. The milk containing less fat could be secured for cooking and that richer in cream for special purposes, and the whole transaction would be fairer than the present system, where a quart of adulterated and skimmed milk sells for the same money as the genuine product.

Skimmed milk and buttermilk both have their value as nutriment, and experts say that even after cream has been removed the skimmed milk still contains nearly ten per cent of its nutritive properties. Buttermilk is often more acceptable to patients than sweet milk, and, if it can be obtained fresh every day, it can be used occasionally to add variety to a strictly milk or liquid diet. It is said that six ounces of buttermilk has in it the same amount of nutrition as a medium-sized potato.[2] “Actual experiment has demonstrated that a fifteen-cent lunch containing nine different food materials (soup, beef, potatoes, turnips, bread, butter, coffee, milk, sugar), did not have any greater nutritive value than a four-cent lunch consisting of a pint of skimmed milk and ten ounces of bread.”

[2] U. S. Department of Agriculture, Bulletin 74.

In ordering milk it is better to get too much than too little. The excess can always be used in food combinations, and at the prices ordinarily paid it is not an expensive food. Because of the ease with which it is digested by the average person, and its nutritive properties, it can be served in almost a numberless variety of forms to sick people, and often in preference to other foods. [Pg 78]

Care of Milk

Assuming that it is possible for dealers to supply pure milk, and that the housekeeper knows whether or not she is getting the genuine article for her sick family, there is still something required, if it is to reach the patients in good condition. Be the article never so pure when delivered, it can quickly become impure by careless handling. The milk delivered at a very early hour may be left at the door where it is exposed to heat, dust and flies, and by the time it is taken into the house impurities may have entered that will account for it becoming sour in a few hours. Another source of contamination can be traced to the practice of putting milk in open vessels into the same refrigerator with meats and vegetables. Old tin or wooden vessels should never be used, and vessels should be thoroughly scalded and scrupulously clean before the milk is put in. If the racks and shelves in the cooling room are scrubbed daily, also the inside of the milk refrigerator, and a temperature of 50 F. or lower maintained, there should be no difficulty in keeping milk sweet twenty-hour hours or longer.

Milk delivered in bottles which have been previously sterilized will be found more satisfactory than that which has been carried in large cans and dipped from vessel to vessel. Each time it is handled the contents of these cans are exposed to floating dust, and the time the milk will remain sweet is shortened. The bottles in which milk is served should be carefully cleaned as soon as emptied, and in warm weather milk should never be left without ice. The careless habit that exists in some kitchens of allowing the milk to stand in a heated room for an hour or more because every one is otherwise employed, should never be tolerated in a hospital.

Another point in handling may be worth mentioning; milk or cream [Pg 79] intended for the sick may be consumed by kitchen employees, and in spite of the housekeeper’s plans the supply may become exhausted before the new supply is available. This often occurs at night, when it is impossible to replenish the quantity from any source. All calculations as to the amount per capita required will be valueless if servants are allowed to consume it at will. If milk is to be allowed to them as a beverage, then a much larger amount should be ordered.

Cheese

Cheese, which is a concentrated form of milk, while rich in nutrition, is somewhat difficult of digestion, and if bought at all for hospital patients should be purchased sparingly and served in very small portions. Like milk, it needs to be kept cool and entirely separate from fruits, vegetables and meats.

Eggs

Eggs are another of the valuable tissue-building foods in constant demand in hospitals. For fully eight months of the year they can be bought at moderate prices, and considering their great nutritive value are not an expensive form of food. Because of the ease with which they are digested by most invalids, and the great variety of ways in which they may be served, they fill a very important place in the hospital menu. It is said that there are more than five hundred different ways of preparing eggs. The purchase of them is, however, attended with some uncertainty. Many tests for detecting the quality are in use by experts. The “candling” test consists in holding the egg against a light between the eye and the sun. The perfectly fresh, good egg will appear clear and unclouded and the yolk can be perceived. If decomposition has begun, it will appear dark colored. Changes in the appearance of the shell as shown by comparison of fresh and stale eggs are sometimes helps in detecting the quality. [Pg 80]

Where a hospital has an adequate cooling space, undoubtedly the more economical method of buying is by the crate and in sufficient quantity to last several months. Some institutions lay in a year’s stock, buying always in April, which, it is stated, is the only month in which it is wise to buy eggs for storage. In a cooling room in which the atmosphere is sweet and pure, a temperature of 34 F. will preserve eggs for a year with very little appreciable change in quality.

Even when the price of eggs is from twenty-five to thirty cents a dozen, they are not more expensive than many other forms of animal food—notably beefsteak—and when served in the form of omelettes, scrambled or creamed eggs where other substances are added to compose the dish their cost in a meal is less than steak.

Economy and Care

In arranging a hospital dietary the comparative cost of food should always be borne in mind, and where food of cheaper material supplies the place of the more costly, the cheaper should have the preference. If, when eggs are high-priced, the housekeeper could arrange to economize in their use in desserts and cake rather than in their use as meat substances, it will be in the long run the more sensible plan. However, desserts in a hospital and desserts in a home are two different things. The so-called dessert in a hospital often forms the meal for the patient with weakened digestive powers, and in such cases eggs must be used, be the price high or low. For the healthier members of the hospital family, fruits and desserts made without eggs can be depended on to take the place of desserts requiring eggs when the latter are expensive. In storing eggs, the housekeeper should remember that the shell of an egg is not impervious, and if placed long in contact with apples, onions or other substances of decided flavor the [Pg 81] odor can be detected in the egg when cooked. Another point to be remembered is that an egg kept in a refrigerator will take longer to boil than if kept in a room at the ordinary temperature. When dealing with impaired appetites and weakened digestive powers these so-called minor points have special importance.

Meat

Meat is the most expensive article of food in a hospital, and for this reason the art of buying requires real study. The flesh of animals seems to be especially adapted to contribute to the building up and maintenance of the organic structure of the human system, but owing to the absence of starch is not to be depended on to produce force or energy. Meats are generally believed to be easier of digestion than vegetable foods. The chemical ingredients are much like the various substances of the human system, and are therefore more quickly acted upon and made ready for absorption. A certain woody fibre often surrounds the nutritive ingredient of the vegetable and renders it more resistive to the action of digestive fluids.

Beef

Beef is believed to be the most nutritious of all animal foods, and that which seems to be most in demand in a hospital. It is a meat in which quality varies greatly, and much care needs to be used in its selection. The age of the animal, the method used in feeding it, the condition when slaughtered, and the length of time since slaughtering took place, all affect the quality and flavor. The flesh of a young animal is more tender, but lacks the flavor found in the flesh of older animals. A larger relative proportion of bone is found also in younger animals. The best beef is usually obtained from animals of from three to six years of age. When the cooling facilities are adequate, at least a side of beef should be purchased at one time. Most meats improve by [Pg 82] being kept a reasonable length of time. In a hospital the various parts, even much of the so-called refuse of the butchers, can be utilized where several classes of diets have to be arranged daily, and a great saving of money effected by buying in quantity. This will be clearly shown by comparison if each part has to be bargained for separately. In order to guard against waste and use the meat to the best advantage, some system and skill in cutting will be needed. The accompanying diagram shows the different cuts into which the side may be divided, providing the largest amount of good cuts and with the least refuse. A good quality of beef from an animal three or four years old should show elasticity on being pressed with the finger; it should have a fair sprinkling of creamy-looking fat, the lean portion should [Pg 83] be a deep red and of a rather fine fibre. Coarse fibre usually means poor flavor. Tough beef is usually darker in color, the proportion of fat will be less, the fat instead of being a creamy white will be a decided yellow and the fibre coarse.

Veal

Veal may be occasionally added to the hospital menu for variety, but because of the excessive proportion of bone it is not considered an economical meat to be used in any quantity. It is also believed to be more difficult of digestion than most other meats.

Mutton will perhaps rank next to beef for hospital uses, and like beef it differs greatly in quality. The fibre is shorter and more tender, and the color of both the lean and fat of mutton somewhat darker than that of beef. Good mutton should have a sprinkling of fat, but excess of fat should be guarded against. An entire carcass should be purchased at one time, cutting it as required.

Chickens

In selecting chickens for the hospital, both young and old fowls will be needed. For broths and jelly an old fowl, not too fat, is preferable. Where the meat of the chicken is the substance wanted, a fowl of from one to two years old should be purchased. The proportion of bone to meat in chickens under that age makes them quite an expensive commodity. To ascertain if the meat is tender try the skin under the wing or leg. If the joint of the wing yields readily or breaks it is tender.

Fish

Fish help to supply the demand for variety in the diet, which is more important in dealing with the capricious appetites of invalids than with those in health. The different varieties vary greatly in nutritive value, in flavor, and also in digestibility, owing largely to the proportion of fat. The amount of bone in proportion to the meat in most [Pg 84] ordinary fresh fish makes them a trifle more expensive than most meats, steak and fowl being excepted. Because of their strong odor, which would require for them an entirely separate storage receptacle, it is better to buy them each day as needed. Salmon is considered more rich in nutrition than most other varieties of fish, and the oily or coarser grained species more nutritious than the white or finer grained, although the latter have the more delicate flavor and are easier of digestion. In choosing the fish, if the gills are a bright, clear red, the body firm and stiff, the odor not disagreeable, the fish may be accepted as in good condition.

Pork

Pork will occasionally have to be purchased, even in a hospital. In spite of the fact that it is more difficult of digestion than many other forms of animal food, and of the adverse criticisms heaped upon it, most people in their secret heart (or stomach) are fond of a bit of good ham. Ham and bacon are more suitable for use in a hospital than fresh pork. The lean of ham should be a deep pink, and excess of fat should be avoided. Bacon should be quite thoroughly mottled with both fat and lean. Care should be taken that the ham and bacon have been cured and prepared for market by a reliable firm, and that they are protected from dust and kept in a cool place.

Butter

Butter is perhaps the most digestible of all animal fats, and the most delicately flavored. So many substitutes for the genuine article are now on the market that it needs to be selected with great care. Fat being one of the elements of food depended on for the production of heat and energy in the body, butter has a place of some importance in the average invalid’s diet. For use on the tables and trays, a good quality should be procured and a cheaper grade secured for use in cooking. [Pg 85]

Potatoes, the most important of all vegetables for table use, should be purchased in quantity in the fall when the price is lowest and stored in a cool, dark, dry place.

Fresh Vegetables

Green vegetables will, of course, be secured as needed. When fresh there is a crispness about them that is not found in those picked longer. Lack of crispness usually means lack of flavor. All vegetables will be improved by soaking in cold water before being cooked.

Cereals, sugar, and in fact the whole list of dry food products, and canned goods, are a matter of much less anxiety to the hospital housekeeper than the perishable commodities. On general principles, buying in sufficient quantity to secure wholesale rates is the only sensible method. But, as has been previously remarked, the construction of the hospital modifies all plans for housekeeping. Lack of storage facilities make it impossible for many housekeepers to buy wisely or economically. Mistaken ideas of economy in construction often mean increased and unnecessary expense as long as the hospital exists. Where economical housekeeping is expected, arrangements should be made in every hospital for sufficient cold storage facilities, at least for the storing of meats, which usually form the largest item in the monthly accounts. [Pg 86]

Approximate Estimate of Quantities of Food for a
25-bed Hospital, a 50-bed Hospital and a
Hospital of 100 Beds.

This is taken from a month’s experience with the average
number of acute cases and convalescents in a hospital
with an active surgical service.

BREAKFAST.

  Hospital of
25 Beds
Hospital of
50 Beds
Hospital of
100 Beds
Beefsteak, Round 5 lbs.  8 lbs. 15 lbs
Porterhouse 8 lbs. 10 lbs. 20 lbs.
Eggs 2 doz.  4¼ doz.  8 doz.
Cereal, Cooked fresh 5 qts. 10 qts. 20 qts.
  ”   Prepared 1 pkg.  2 pkgs.  4 pkgs.
Bread for toast, 1 lb. l’ves 4 loaves  8 loaves  2 doz. l.
”  (plain) in addition 2 loaves  4 loaves  1 doz. l.
Butter 1½ lbs.  2½ lbs.  5 lbs.
Cream (for priv’te pat’ts). 1½ pts. 3 pts. 2 qts.
Milk (allowing ½ pt. each) 6 qts. 12 qts. 24 qts.
Coffee (dry) 3 to 4 cups    5 to 7 cups    2 lbs.
Sugar 3 lbs.  5 lbs. 15 lbs.
Fruit fresh (oranges, etc.) 1 doz.  2½ doz.  5 doz.
Fruit stewed 2 qts.  4 qts.  7 to 9 qts.
Cocoa (allow one teaspoon      
for each patient getting
it and add one cup each
to quantity of milk)

[Pg 87]

DINNER.

  Hospital of
25 Beds
Hospital of
50 Beds
Hospital of
100 Beds
Soup  5 qts. 10 qts 20 qts.
Croutons or Crackers  2 lbs.  5 lbs. 10 lbs.
Roast, Rib  8 lbs. 12 lbs. 20 lbs.
Lamb, Leg 10 to 12 lbs. 15 to 18 lbs. 25 to 30 lbs.
Chops  2 doz.  4 doz.  7½ doz.
Potatoes  1 pk.  ½ bush.  1 bush.
Celery  1 doz. stalks    1 large bun.  2 large bun.
Beets  ½ pk.  1 pk.  ½ bush.
Bread, bakers 1 lb. loaves    3 loaves  6 loaves  1 doz. l’ves
Tea  ¼ lb.  ½ lb.  1 lb.
Sugar  2 lbs.  3 lbs.  5 lbs.
Milk  3 qts.  7 qts. 15 qts.
Dessert, Rice pudding  4 qts.  6 to 7 qts. 18 to 20 qts.
Ice Cream, in bulk  4 to 6 qts.  8 to 10 qts.  4 to 5 gal.
Ice Cream, brick  2 to 3 br’k  4 to 8 br’ks   10 bricks

SUPPER.

  Hospital of
25 Beds
Hospital of
50 Beds
Hospital of
100 Beds
Scalloped Potatoes,      
(potatoes, milk, butter)   3 qts. sliced     6 qts. 10 to 12 qts.
Bread 6 loaves 12 loaves  2 doz.
Butter 1½ lbs.  3 lbs.  6 lbs.
Fruit, stewed 2 qts.  5 qts. 10 to 12 qts.
Tea ¼ lb.  ½ lb.  1 lb.
Milk 4 qts.  6 to 7 qts. 10 to 12 qts.
Eggs, special diets 1 doz.  2 doz.  4 doz.
Cream 1 pt.  1 qt.  1 gal.
Oysters, raw 2 to 3 qts.  3 to 5 qts.    6 to 8 qts.

[Pg 88]

CHAPTER VIII.

Preparation of Food

If the purchase of a good quality of food for the patients in a hospital is important, the preparation and serving of it is of still greater importance. The most expensive food may be spoiled in cooking, or be served in such a manner that the patient has no desire for it. On the other hand, the cheaper article may be so tastily prepared that it will be readily partaken of.

In dealing with the sick, the method of preparation and the manner of serving food assume an importance that is not sufficiently appreciated by the untrained. It is hardly possible for every hospital to have a trained chef or a diet cook. Much of the cooking must needs be done by the ordinary servants, but the hospital housekeeper should have an intelligent appreciation of the needs of her family, her influence should pervade the domestic region constantly, and her standards and methods be understood by every one who handles food for the patients. The difference between the kind of cooking needed for the sick and the well needs also to be thoroughly understood, and while in reality the housekeeper must cater to both classes, yet the sick are her especial care. The fact must be borne in mind, too, that in a hospital we are dealing with people in whom frequently the functions of the organs of digestion and assimilation are seriously disturbed and weakened. These changes are accompanied by a loss of appetite and often a disgust for food. Yet the waste of the body, because of the sickness, is increased, [Pg 89] and special effort is needed to supply the most nutritious food with the minimum tax on digestive powers.

Objects of Cooking

The method of cooking, which is in reality preparing the food for digestion, thus becomes a powerful factor in dealing with diseased conditions. In most foods, and in animal foods especially, cooking develops the agreeable flavors and makes them more palatable. It also enables them to become more readily masticated and therefore more easily digested. The nutritive elements of food are extracted for assimilation by the action of the various digestive fluids of the body. In many diseases the glands that secrete these digestive fluids are weak or inert, and need stimulating, and here attractive cookery and artistic serving play an important part. When food is pleasing to the eye the nerves of sight and taste are excited. These nerves act reflexly on the nerves of the stomach, stimulating the gastric glands. Eating is, therefore, made more enjoyable, a greater flow of digestive juices is produced, and the result is better digestion, better assimilation and increased strength.

Classes of Diets

Four grades of diet for patients are ordinarily recognized in a hospital. Besides these we have the different grades of food, served to the different classes of employes on the working staff, making as a rule seven different classes of dietaries for the hospital housekeeper to provide each day. Usually there are dishes on the regular diet that may be used for the semi-solid or the light diets, and also for the officers’ and employees’ tables. And as a general rule there are special forms of liquid diet prepared each day, that may be added to the other dietaries, thus making it possible to cook many of the dishes in bulk, which is always the more economical way. [Pg 90]

For patients on fluid or liquid diet, such articles must be provided as beef tea, beef juice, chicken broth, mutton broth, gelatine, barley water, cocoa, certain forms of strained gruel, albumen water, koumyss, buttermilk, whey and sweet milk served in its natural state or in its almost numberless combinations that vary the flavor.

For those on semi-solid diet such foods as oatmeal gruel, custard, ice cream, rice, tapioca, sago, and sometimes milk toast are used in addition to the foods included in fluid diet.

For patients on light diet such additions are made as bread, toast, some fruits, certain kinds of fish, such as oysters, clams and the white-fleshed fishes, poultry and game.

Regular diet in a hospital may include all the above articles with beef, mutton and other meats added, certain vegetables and all fruits.

For patients in the transition stage with weakened digestive functions, the shorter fibred meats are usually served in small quantities, before beef, mutton and other meats more difficult of digestion. But even in the regular diets, much discretion needs to be used. Many articles that are permitted in health have no place on the hospital dietary. Boiled cabbage, or cucumber pickles, or boiled dumplings, might be relished by the heartier of the patients on regular diet, but would be entirely unsuitable for the majority, and therefore not an economical food to serve. Even though digestion is not seriously impaired, the functions because of lack of exercise are sluggish, and it is unwise to put unnecessary tax on the excretory organs. So that though doctors may give full permission for the patient to “eat anything,” the housekeeper’s common sense will prevent her from incorporating in the hospital dietary many articles of food allowed in health. [Pg 91]

The foods included in each class of diets and the limitations should be thoroughly understood by the whole working staff of the hospital. It is well to have printed lists conspicuously posted in different parts of the hospital. On no account should milk be allowed to be given to hearty patients on full diet, or to any patient on that class of diet unless specially ordered by the physician in charge. This rule needs special emphasis or milk bills may be greatly increased with no special benefit to any one.

As a rule the patient who is on an exclusive liquid diet must be dealt with individually and with great discrimination. The amount and kind of diet will be prescribed by the physician. But in these cases special preparation becomes very important. Milk frequently forms a large part of the fluid diet, as it is one of the very few complete foods.

Various forms of pre-digested and concentrated foods are in use that are of great value in such cases, but they belong to the drug room, rather than the kitchen, and need not be mentioned here.

Broths

Next in value to milk and its preparations, on the liquid diet sheet, come broths. When broths are required for patients suffering from acute or febrile diseases, the housekeeper should see that a rich and nutritious article is provided—not water flavored. In the preparation of these broths, the object should be to extract as much as possible of the soluble elements of the meat into the water. The meat should be cut in small pieces and put in cold water, the temperature being gradually raised to about 160° F. The remainder of the cooking should be a gentle simmering process. For these broths the cheaper part of meat may be [Pg 92] utilized, and it is hardly necessary to add that when a cheaper grade article can be used with equal satisfaction it should always be done. In the preparation of soups, care must be exercised regarding the flavor. All strong and decided odors, such as onion, should be avoided. In fact it is usually better to have a carefully combined flavor than one special flavor that may be disagreeable to some tastes.

Soups

As a general rule it is well to have soup of some kind on all the dietaries of the hospital once a day, except in the very hot weather. The body, even in health, requires a large proportion of water, and in most diseases water has a real therapeutic value. It is needed as a solvent agent during digestion and assists in the various processes of absorption, secretion and excretion. When, therefore, it can be combined with certain food substances to form an acceptable article of diet, it should be done. The value of broths and soups is not sufficiently appreciated by the poorer classes, and the hospital dietary should form a practical lesson on sensible diet. The bones of meat can be utilized in the making of soups, a nutritious extract consisting chiefly of gelatin being obtained by boiling them. It is said that three pounds of bone contains as much carbon as one pound of meat, and as much nitrogen as seven pounds of meat. In serving broths to patients care must be taken to remove all floating grease. When there is time, it is always better to allow the soup or broth to become thoroughly cold, and then have it carefully skimmed. A few drops of oil or grease on the broth may be sufficient to destroy the appetite for food that is such an important factor in tiding a patient over the critical period. [Pg 93]

Cooking Meats

When the object of boiling meat is simply to cook it, retaining as much as possible of its soluble constituents, the meat should be in one large piece and plunged into water already boiling. Brisk boiling should be continued for ten minutes till the albuminous matter on the exterior is coagulated. This forms a protective layer which helps in preventing the escape of the nutritious juices into the water. The cooking should be completed more slowly. Too great heat causes the meat to be hard and shrunken. Roasting meat retains the nutritious juices better than boiling. But, as in the boiling, the meat should be first exposed to a strong heat, the cooking being completed more slowly.

Cooking Vegetables

Green vegetables are valuable as food, not so much because of their nutritious elements, but because of the salts they supply which are demanded by the system. Their digestibility depends greatly on their being well and carefully cooked. In most of them there is a large proportion of indigestible residue, which acts as a stimulant to peristalsis. It must not be forgotten that a relish for certain vegetables is an acquired taste, and unless an article has real nutritive value it is unwise to try to cultivate the taste while in the hospital, even for variety. Celery, for instance, is rarely relished by poor people, and for this reason it is a needless expense to serve it in the free wards. Other exceptions will readily suggest themselves. Potatoes are rich in starch and when cooked in quantity are best served mashed. This method of serving prevents them reaching the stomach in hard, indigestible masses, as is often the case when served whole.

The profusion of books, giving definite culinary rules for the preparation of all the various articles of diet, both for the sick and healthy family, makes unnecessary more than a passing mention of these few general principles to be observed in preparing a hospital dietary. [Pg 94] One general aim should be kept in view in preparing food in general; the method of preparation should conserve the nutritive elements of the food and cause it to make as little tax on the digestive functions as possible.

Time of Meals

As a general rule the heaviest meal of the day—the dinner—should be served in a hospital at mid-day. This plan will be more satisfactory to those on whom the preparation of the meal devolves, and it is distinctly better for the patients. The time needed for the digestion of meats and vegetables is estimated at from three to five hours. If the heavy meal is served late in the day the work of the stomach cannot be completed in time for the patient to get to sleep early, and if the stomach is actively engaged in digestion the rest is likely to be retarded or disturbed. This rule of course does not apply to patients in a weak condition who must be fed at frequent intervals and in smaller quantities. And it needs also to be remembered that a perfectly empty stomach does not contribute to repose, and indeed is a frequent cause of wakefulness.

A plain, wholesome early breakfast for the “help” and for the nurses is a necessity in a hospital where the heaviest work comes in the morning hours. This should be as substantial as the appetite and digestion are equal to. With nurses who are constantly exposed to morbid and depressing influences, the breakfast is of special importance, and a nurse who does not partake of a hearty breakfast is always more susceptible to deleterious influences. The rush of work, long hours, mental anxiety, and almost constant walking or standing, which are incident to hospital life, make it very necessary for a good quality and quantity of food to be prepared for those who have the direct responsibility of the care of the sick. And while extravagance ought to be guarded against, yet no mistaken idea of economy should prevent the [Pg 95] housekeeper from serving a well-balanced, nutritious and attractive dietary to these important members of her household.

The housekeeper should not fail to remind herself constantly that “variety is the spice of life,” and should see that “wholesome variety” characterizes her meals, for the nurses as well as patients, from week to week. The element of surprise or unexpectedness figures largely in the pleasures of every-day life. Anything that leaves out the possibility of the “unexpected,” especially on a nurses’ table, has much in it to condemn and little to commend.

On the nurses’ table clean table linen at frequent intervals ought not to be regarded as a luxury, and certainly it adds greatly to the enjoyment of a meal. A few of the flowers that are often distributed lavishly in a ward would as fully fulfil their mission there. A pretty growing plant purchased occasionally for the same purpose is an extravagance that could be forgiven. Then, besides refined surroundings and neat, attractive table service, the character of the food, the quality, could be greatly improved by a little careful planning without any great, if indeed any, increase of expense. Dr. Peters, of the Rhode Island Hospital, in an admirable paper on hospital dietaries, asked the following pertinent questions:

“Do we realize the satisfaction that a variety of soups, so easily and cheaply prepared, give to our inmates? Do we remember the many ways of preparing meats to be served with a great variety of gravies and sauces? Do we realize that mincing meat is an important method of preparation? Do we appreciate how much more satisfactory fresh vegetables are than canned? Don’t we forget the natural craving for fruit? Couldn’t we, with a little forethought, give our nurses and employes salads, ices, etc., at practically no greater cost than the routine dishes? Did you ever realize the variety of ways such common articles as potatoes, rice, apples, etc., can be cooked and served? Do [Pg 96] we serve fish in as great a variety and often enough? Do we give attention enough to the possible varieties of dessert? Are all these questions trite? Yes; but possibly worth repeating to act as reminders.”

It is time that the system of arranging a nurses’ bill of fare for months ahead were forever abandoned in every institution. The very monotony of it makes one weary at the thought. To know that on a certain day of the week one is doomed to a dinner of corned beef and cabbage is certainly not likely to create enthusiasm for the morning’s work. To contemplate while dressing that “this is the day for fried liver for breakfast,” is sufficient to nauseate some of the less hearty members of the family. To know that of all the list of fruits in the market only about three or four are likely to appear on the nurses’ table till the authorities see fit to change the bill of fare is, to say the least, depressing. Monday, apple sauce; Tuesday, stewed prunes; Wednesday, dried peaches or apricots, etc. And the desserts are often equally monotonous: Bread pudding, rice pudding, apple pie and again bread pudding, rice or tapioca pudding; apple pie, with a dish of cornstarch—sometimes pink, sometimes white—on Sunday. It is little wonder that after two or three years of this monotony in diet, many nurses regard these articles of food as things to be avoided for the remainder of their lives.

As a general rule it is best to avoid, as far as possible, serving food that has been warmed over, or twice cooked, to sick people, though perfectly proper for those in health. It is better, however, to calculate as carefully as possible the amounts required for each meal, and cook no more than will be used. Meat, fish and vegetables, especially, are better for the sick when cooked fresh.

While many of the salads—lobster salad for instance—are not suitable [Pg 97] for a hospital dietary, when viewed either from the standpoint of economy or digestibility, yet delicious salads may be made of very common articles without any extra expense. A salad composed of apples, celery, a few nuts and a little French dressing could scarcely be considered an expensive dish at any season, and yet such a simple combination would add a relish to an otherwise commonplace meal. A bean salad is both dainty and nutritious. Many such delightful combinations will suggest themselves to the housekeeper whose heart is in her work, and who is really mistress of her art, and these all go to make up the difference between variety and monotony.


[Pg 98]

CHAPTER IX.

Diet Lists and Blanks

For the housekeepers’ guidance in preparing meals for the patients, a diet list showing the number of patients to be provided for and the classes of diets required, needs to be prepared. The duty of preparing this list usually devolves upon the head nurses in charge of the wards and the lists should be sent in either at night or early in the morning of each day. Special articles for individual patients will usually be prepared in the diet kitchen, and may or may not be placed on the diet sheet sent to the general kitchen. In large institutions where there is a pantry on each floor in which special diets are prepared, special requisition blanks are used in many hospitals in procuring the supplies. The amount of eggs, milk and beef juice and the various articles that are expensive and perishable, are estimated by the person in charge, and the requisition is signed by the superintending nurse before it is sent to the kitchen or store room. Such a requisition blank is usually about the size of a doctor’s prescription blank, and they are most convenient when prepared in blocks similar to letter pads.

The housekeeper will, of course, superintend the carving of meats and the dispensing of food from the main kitchen. This is one of the most important of her duties and many a dollar can be saved or lost by neglect or attention at this point. Proper carving of meats results in a substantial saving in the course of a year. Dr. W. Gilman Thompson [Pg 99] says that an “undesirable tendency among American hospital dietaries is to include too much meat. Not over four ounces of cooked meat (without bone) should be allowed in the meal for men.” Unless specially ordered meat should never be served more than twice a day in a hospital and once for the average patient is sufficient.

Serving of Food

In the serving of food to the patients, provision must be made for serving cooked food that is intended to be hot, really hot. If this is to be accomplished successfully, it must have special attention and special facilities. If there is no diet kitchen or nurses’ pantry on each floor, and the trays are prepared in the main diet kitchen adjoining the general kitchen and sent on the dumb waiter, it means that plates must be heated thoroughly and every article of hot food covered with a hot plate or saucer. The food must be really hot when served on the plates, and delay at the other end of the line guarded against. This method is the only one that can be pursued in small hospitals, or where mistakes in construction have resulted in there being no facilities for serving food convenient to the wards. It is hardly necessary to say that each tray should have on it a ticket bearing the name of the patient for whom it is intended. Neglect of this precaution might cost a life, as for instance if a convalescent typhoid patient (famished with hunger as they usually are in that stage) who was allowed only custard or broth, had served to him a tray laden with fruits, meats and vegetables. Such accidents are not unknown, and may happen in any hospital where laxity about the serving of food exists.

Where there is provision on each floor for setting trays and serving food the same care needs to be exercised about heating the dishes. The food will be served in bulk from the main kitchen, usually in large covered vessels, which should be hot before the food is put in. A steam table in the diet kitchen will suffice to keep them hot till the serving [Pg 100] is completed. In winter it may even be necessary to heat the cups, for what is more insipid than a cup of lukewarm tea or coffee?

Equal care needs to be observed to serve cold things really cold. Ice may be a luxury to some people, but the free use of ice in a hospital is an urgent necessity. Not only is it needed to preserve the food, but it has its place in adding relish to a meal especially in hot weather. When a patient is hot and restless and uncomfortable even the clink of a piece of ice in a glass is refreshing and will help to create a desire for the milk itself. It ought not to be necessary to add that cold food should be kept as far as possible from the hot food on a tray, and yet having more than once found a nurse carrying a tray with a dish of ice cream covering a bowl of steaming hot soup, or the butter crowded as close to the teapot as it could be, it may be that such reminders are not out of place. If only everybody lived up to the best they knew; if only one could be sure that what was taught would always be acted out, the housekeeper’s anxiety about the serving of food would be greatly lessened. As it is, “line upon line and precept upon precept” is needed, and in addition that “eternal vigilance” that is said to be “the only price of safety.”

Tray Setting

In the setting of a tray there is a right and wrong method, as in everything else. It is not sufficient to have the dishes and the tray cloth spotlessly clean, but the method of arranging the various dishes should have in view the patient getting the food with the greatest ease. A moderate size tray is preferable. The very large trays are cumbersome and awkward and it is difficult to arrange the small trays to advantage. In the center of the side of the tray that will be placed nearest to the patient should be the plate, with the knife, fork and [Pg 101] spoons, arranged in their proper places on either side. At the right hand should be placed the teacup and saucer, and on the left the bread and butter plate, or the individual butter dish. Back of the teacup is placed the small tea or coffee pot. Thoughtless nurses often reverse the position of the teapot and teacup, making it necessary for the patient to reach over the teapot to the back of the tray every time he wants a drink. In the center of the back part of the tray, or the part farthest from the patient, the little sugar and cream vessels should be arranged, and in the left-hand corner of the same side the dessert. The pepper and salt bottles and other small articles may be arranged as space will permit. It is well to have a regular custom established of emptying the sugar vessels and washing them after each meal. Crumbs are dropped in or they become smeared with a wet spoon, and unless the regular emptying and washing after each meal is insisted on, the housekeeper can never be sure they are properly clean. Salt and pepper bottles should be examined daily, and the outside washed after each meal also. It is so easy to overlook this small matter and send empty salt bottles on the tray. The food may be served hot and really be appetizing, save that it needs more salt to suit the patient’s taste. If a bell has to be rung, and a nurse summoned to get the salt, the meal may have cooled and the appetite for it have waned, before it arrives. These may seem small things to dilate upon, but in reality they are the real test of the quality of management. A chain is no stronger than its weakest link, and real success in a hospital demands attention to these apparently trivial details. These trivial details are large to the patient and have much to do with keeping him happy and comfortable. It is not sufficient to provide good food and prepare it carefully. It is only what the patient really eats and assimilates that is a factor in his recovery, and the best meal may be spoiled by lack of [Pg 102] attention to the details of serving. The idiosyncracies of patients are nowhere more in evidence than where their food is concerned, and while they are sick, these idiosyncracies and tastes should be considered as far as possible with their highest interest in view.

Another very important point to observe in serving food is not to serve too much at one time. In dealing with a capricious appetite, the sight of a quantity of food often repels when a small portion of the same food daintily prepared and attractively served would be eaten with a relish and an appetite for more created. At the same time no cause should be given for the criticism that a patient did not get sufficient to satisfy him, when his doctor allowed him to have plenty. In planning for regular diets, the fact needs to be kept in mind that a larger quantity of food, proportionately, will be consumed in the men’s ward than in the women’s wards, and sufficient to replenish the supply should be sent from the kitchen.

Bills of Fare

A settled bill of fare for the different days of the week is never a good plan in a hospital. The patients will soon learn the rotation of the different dishes. Old patients will tell new ones, and the matter will come up for discussion. Frequently before the food is served, some patient who has heard objections to some food stated has decided she does not want it, when if it had been taken unexpectedly to her it would have been eaten without question.

Dishes

The prettiest, daintiest dishes the house can afford should be provided for the private rooms. The constant breakage of dishes and especially of dainty china, which goes on in a hospital makes it out of the question to provide this kind of ware for the wards, and here beauty must give place to durability. But a few dainty cups, especially for [Pg 103] the women’s wards, will be greatly appreciated, for there are refined, sensitive people in the free wards, as elsewhere. These special cups can be used in serving hot effects. Indeed it is astonishing how few nurses know attractiveness to the food which is in itself an aid to digestion. Care must be observed to avoid partiality in this matter, for patients, like children, are quick to discern symptoms of favoritism.

Glasses are now so inexpensive that every hospital can afford to supply a sufficient quantity for all the patients.

A writer in Table Talk thus describes from a patient’s point of view the invalid’s tray in a certain hospital and shows not only what delightfully dainty effects may be secured in serving the commonest articles of food, but how the memory of those effects remained long after the hospital experience was ended:

“A couple of weeks spent in an up-to-date, twentieth century hospital, has opened my eyes on many points connected with nursing, and especially in regard to the setting forth in an appetizing way of the tray for an invalid.

“At breakfast, dinner and supper these trays were artistic creations of the highest order. One dinner tray was a study in golden greens and white as to china and food, with the needed touch of color given by wreathing the salver with racines of flowers in soft old pink, a flower whose old-fashioned name I could not remember, but whose color and fragrance took me back through more years than I care to count to a sweet, old New Jersey garden.

“There was a golden brown chop in a circle of riced potato; crisp, yellow-green lettuce leaves, ivory white at the base; strips of white and gluten bread spread with golden butter and piled log-cabin fashion on a pretty fluted dish of green and white china; pale green squash; a quivering mold of yellow custard and a pretty teapot in green and gold, [Pg 104] with fragrant amber tea and a tiny pitcher of yellow, thick cream.

“A supper tray which stands out pre-eminently in my memory, by reason of its exquisite tones of color, contained a plate with four luscious oysters on cracked ice, the bivalves laid in the form of a star, and between the rays yellow wafers and discs of lemon. There was a plate of lettuce sandwiches in strips an inch wide by three long; a mould of farina, with its attendant pitcher of cream, a glass dish of apple sauce whipped to a foam with white of an egg; triangles of white and gluten bread buttered and cut in the thinnest of slices; a pitcher of cocoa and three Reve D’or roses.

“Sometimes dainty sprays of Cecil Bruner roses lay among the tempting viands, and fell in delicate profusion over the edge of the tray. Again, little clusters of violets peeped over its rim and perfumed the whole atmosphere, or the ruddy glow of crimson strawberries would be accentuated by the deep red of roses of Sharon nestling in their glossy, dark green leaves.”

Hints on Serving

An ordinary fruit, vegetable, or meat may be quite transformed by the manner in which it is being served. An orange may be cut through crosswise and served with a very small dish of powdered sugar and an orange spoon, or it may have the whole fruit cut in carpels or sections from pole to pole and the skin drawn back from each enough to loosen it, and then again drawn into shape. If a baked potato form a part of the meal, cut a slice from the upper side, take out the potato with a small spoon, mash with butter, cream, and salt, whipping light with a fork; fill the skin again, and stand in the oven long enough for the little cone of potato exuding from the top to take a golden brown tinge. [Pg 105]

Fruit foams are digestible and dainty for invalids. Any sort of stewed fruit—apricots, apples, peaches, or prunes—should be whipped smooth while warm, and when thoroughly smooth beat in the white of an egg whipped to a stiff froth; serve in thin glass, a pretty cup, or low Japanese bowl.

A patient may be beguiled into eating nutritious food simply through the manner of its preparation. To speak of raw beef sandwiches would doubtless destroy the appetite of a delicate person, but if you will prepare them as follows he will eat them without knowing, probably, what he is eating: Lay a thin slice of round steak on a clean board, and with a rather dull knife scrape off the meat, leaving the tough fibers remaining; do the same on the other side, laying the scraped beef on a dish. Spread two slices of very thin bread with the beef, seasoning plentifully with salt; lay on these two slices of plain bread, and cut into very small triangles, squares, or strips. Arrange these prettily on a fringed napkin laid on a pretty dish, and garnish with very small inner leaves of lettuce or with watercress.

Another way of serving beef which is digestible, palatable, and nutritious, is to mould the beef, scraped as above, into small olives; heat a small frying pan very hot, sprinkle with salt; lay in these olives and shake over a hot fire for a minute or two until the outer surfaces are heated; turn onto a hot dish and garnish with strips of buttered toast.

Now in a general hospital where a hundred or more or less trays have to be prepared for each meal, it is out of the question to devote as much time to artistic serving as could be wished, but one thing is certain, if nurses are not impressed with the importance of taking pains to serve food attractively, and taught how to do it while in the hospital, [Pg 106] they cannot be expected to secure the best results in serving food in private practice. Even a thing as simple of preparation as a slice of toast gives room for the production of dainty and artistic and wholesome meal more attractive. Butter should be rolled in little balls between wooden spatters and can be prepared hours

[missing text]

how to prepare a slice of buttered toast so that it will be just right. A good deal of the time the toast served in hospitals is either burnt, half done or soggy, buttered over much or in patches and served in slices so that the patient cannot possibly manage to eat it without getting his hands well greased. It would cost no more either of time or money to toast it a golden brown, put the right amount of butter on it, and serve it cut in small squares between hot plates.

The time element is a very important point to be considered in serving food and requires careful calculation. Custards as a rule are better served quite cold, and should be cooked a sufficient length of time before the meal to allow for cooling. Baked potatoes are delicious and easily digested when cooked just right and promptly served, but what is more unappetizing than a baked potato that has remained after cooking in a slow oven till it was soggy and half cold?

Tea is another article that is spoiled if prepared too long before it is served, and this list might be multiplied indefinitely. There is no question but that this lack of forethought in calculating the time that should elapse between cooking and serving of food is responsible for many insipid, unattractive, indigestible meals in hospitals. When so much of the food has to be prepared in bulk, the problem is much more difficult than in dealing with an individual patient, and only goes to show the necessity of having not only first class facilities for prompt serving, but first class trained brains to calculate and first class hands to handle it if the best results are desired. [Pg 107]

If the one in charge has had personal experience in dealing with invalids, many little touches will suggest themselves to her that will tend to make the invalid’s

[missing text]

in advance of the meal and allowed to stand in water. Even a dish of bread and milk may be made a dainty meal if the bread is cut in half-inch dice and piled lightly on a plate. Milk toast may be accepted as a delightful treat if a little thought is given to its preparation and serving. As for all toast the bread should be thoroughly and evenly browned before a moderate coal fire. The toast, cut in neat squares, with the crust removed, may then be placed in a deep saucer (the daintiest and prettiest the establishment affords) and covered with a small plate which with the saucer should first be heated. When the tray cover is spread, set on it a small knife and fork and teaspoon, a little silver teapot of hot milk, a ball of butter and a salt shaker. If the patient is able to butter his own toast and pour over it the hot milk he will enjoy doing it.

When a single dish is to be served use a small round tray or a large plate covered with a doily rather than the regular tray used for meals. Avoid putting so many dishes on a tray that it will seem crowded. It is better to use a second tray for serving dessert or fruit than to pile too much on one tray and have it lack in order and neatness.

Cracked cups or china and broken-nosed teapots are distinctly out of place on any invalid’s tray and in these days of inexpensive dishes are inexcusable in any hospital. Special care should be used to avoid filling cups and glasses to the brim. When this is done, it is impossible to avoid an overflow if it has to be carried any distance, the neat appearance is spoiled, a portion of the contents is lost and it is difficult for the patient to handle without spilling. [Pg 108]

A nurse who has an eye for harmonious effects in colors will not be guilty of setting a tray with a green cup and saucer and an old fashioned blue plate. A sense of the fitness of things will also keep her from placing together a cup and saucer that were never intended for each other. Such blunders in setting a tray are indicative either of ignorance or carelessness.

It is always a mistake to leave food beside a patient any length of time after the patient has had time to eat it. If he has no desire for it when it is first presented, the chances are small that the desire will come if the food is allowed to stay in sight. Besides the exposure to the floating dust made up of the undesirable elements of a sick room will render the food unfit for use at another time. Food substances are the soil in which bacteria flourish.

A spray of maiden hair fern or any of the dainty green effects is always suitable for decoration, as are many flowers. The use of flowers on a tray should be restricted to a single blossom with a touch of green, or a full bloom flower of the dainty varieties. Large bouquets on an invalid’s tray are in bad taste, as are many flowers that elsewhere would be appreciated.

Every hospital experience ought to be a practical lesson to the patient in how to serve food. A taste for the dainty and beautiful, for wholesome and simple things, may be created there that will permanently influence the sick one to higher ideals of living. And certainly the manner of serving food is a pretty fair indication of the tone of the institution. Refinement or absence of refinement will be detected at a glance by one who has a keen appreciation of the aesthetic.

The best results in food service will never be secured in any hospital until some one person is appointed whose chief business is the [Pg 109] preparation of special diets and the oversight of serving. In many large or well-regulated hospitals this matter is in the hands of women specially trained in dietetics, and there one has a right to expect better service than in institutions where one overworked woman must attend to that and a dozen other things, or where the responsibility of serving food is divided among many. If the person in charge has had in addition to the training in dietetics practical experience as a hospital nurse, still better service may be expected. A genuine sympathetic interest, or as some one else has termed it, “an affectionate interest,” in the people for whom the food is prepared, a keeping in mind the Golden Rule in serving and preparing food, as in other departments of the hospital, is fully as important as a knowledge of the science of nutrition. The soul life of the individual can find abundant opportunities for its expression in the diet kitchen as in the ward. There is a field here for specializing which is fully as worthy of a nurse’s attention as some of the other lines of nursing.


[Pg 110]

CHAPTER X.

Hospital Dietaries

The following dietary regulations have been adopted in the New York Hospital:

“All patients shall be furnished the regular house diet, unless otherwise specially directed by the attending physician or surgeon. As a substitute for the house diet there may be furnished, on the order of the attending physician or surgeon only, either of the following:

“1. Restricted diet.

“2. Milk diet.

“The attending physician or surgeon shall specify on the occasion of his first visit to a patient which diet shall be furnished. This duty may not be delegated to the house physician, except that on the admission of a patient to a ward it shall be his duty to give instruction on the subject to the nurse in charge, and such instruction shall be followed until the first visit of the attending physician or surgeon.

“The wards shall be supplied with blanks called diet lists. The head nurse shall carry one of these with her regularly when accompanying the attending physician or surgeon on his visits, and shall note down carefully all his instructions as to diet; he shall sign these lists before leaving the ward.

“Milk diet or restricted diet may not be ordered in addition to the regular house diet, but only as a substitute therefor, but the attending physician or surgeon may order items of special diet in particular cases. [Pg 111]

“Lists defining the different classes of diet shall be furnished each attending physician and surgeon.

“Cards appropriately inscribed shall be placed at the head of each bed, which shall designate the class of diet and also the amount of stimulant which is furnished each patient.

“A diet kitchen is established under the direction and control of the directress of nurses, wherein articles of special diet shall be prepared and served as ordered.

DAILY HOUSE DIET.

Breakfast.—Oatmeal or hominy; tea or coffee, with milk and sugar; bread and butter.

Dinner.—Potatoes; bread and butter; one or more of the following vegetables: Turnips, sweet potatoes, beets, spinach, squash.

Supper.—Tea with milk and sugar; bread and butter; stewed or fresh fruit.

“In addition on Sunday: Breakfast—Eggs. Dinner—Roast beef and cornstarch pudding. Monday: Breakfast—Baked potatoes. Dinner—Stock soup, stewed beef or mutton, rice pudding. Tuesday: Breakfast—Mutton chops. Dinner—Pea soup, roast mutton, bread pudding. Wednesday: Breakfast—Fried or stewed potatoes. Dinner—Roast beef, cornstarch pudding. Thursday: Breakfast—Eggs. Dinner—Stock soup, stewed beef or mutton, tapioca pudding. Friday: Breakfast—Salt mackerel or codfish. Dinner—Bean soup, baked fish, beans, rice pudding. Saturday: Breakfast—Beefsteak. Dinner—Corned beef, cabbage, bread pudding.

RESTRICTED DIET.

Breakfast.—Tea or coffee (with milk and sugar), farinaceous food (with milk), eggs.

Dinner.—Soup; either of the following: Raw oysters, roast beef, steak, chicken with vegetables, pudding (bread, rice, tapioca or cornstarch). [Pg 112]

Supper.—Tea (with milk and sugar), bread (with butter), fruit, fresh or dried.

MILK DIET.

“Six pints of milk daily.

ARTICLES OF SPECIAL DIET.

“Milk, eggs, beef tea, oysters, cornstarch, chops, steak, chicken, chicken soup, rice, broth, farina, ice creams, as ordered by the attending physician or surgeon.

“Salt fish, jellies, custards, gruels.”

Dietary of the Roosevelt Hospital, New York.

“The ward diet of the Roosevelt Hospital, New York, is classified as follows:

FULL DIET.

“Daily.—Meat dressed, eight ounces; potatoes, eight ounces; bread, twelve ounces; butter, one ounce; sugar, two ounces and a half; milk, half-pint; coffee, half an ounce; tea, an eighth of an ounce.

“On Sundays, Tuesdays and Thursdays other vegetables in addition to potatoes, two ounces; bread, rice or tapioca pudding.

“On Mondays and Wednesdays, soup, one pint.

“On Fridays, fish.

Breakfast.—Coffee with sugar and milk, bread and butter, porridge of oatmeal, wheaten grits or samp.

Dinner.—Sunday: Roast beef, tomatoes, potatoes or other vegetables, bread and bread pudding. Monday: Soup, boiled mutton, potatoes and bread. Tuesday: Corned beef, twelve ounces; cabbage or turnips, potatoes and bread. Wednesday: Soup, roast beef, potatoes and bread. Thursday: Soup, boiled beef, potatoes, onions, tapioca, sago, or farina pudding and bread. Friday: Fish, boiled or roast beef, potatoes, bread, boiled rice sweetened with sugar and milk and raisins. Saturday: Stew of mutton, potatoes and bread. [Pg 113]

Supper.—Tea with sugar and milk, bread and butter, baked apples or stewed pears or prunes or green or dried apple sauce, and on Sundays gingerbread varied alternate weeks with currant buns.

HALF DIET.

“Daily.—Meat dressed, four ounces; potatoes, four ounces; bread, six ounces; of other articles the same as in full diet.

MILK DIET.

“Daily.—Milk, two pints; bread, twelve ounces; rice or samp, two ounces; butter, one ounce.

EXTRAS.

“In addition to the above, the following extras may be ordered by the visiting physicians and surgeons: Beefsteak, chicken soup, gruel, beef tea, oysters or clams, cornstarch, mutton chops, milk, rice, chicken, eggs.

Ward Dietary of the New York Infirmary for Women and Children, 1901.

“The following is a sample mid-summer diet from a smaller hospital having about seventy beds, in which attention is economically given to variety in food cookery, which would be impossible in a larger institution without incurring needless expense—Thompson.

SUNDAY.

Breakfast.—Full Diets: Hominy with milk, fish balls or creamed fish, brown bread or biscuit, coffee with milk and sugar, fresh fruit. Half Diets: Hominy with milk, toast, coffee, fresh fruit.

Dinner.—Full Diets: Soup, bread, roast beef, sweet or white potatoes, spinach or egg plant, pudding. Half Diets: Clam broth, toast, chicken or beef jelly, rice or ice cream.

Supper.—Full Diets: Pressed beef or cream salmon, bread and butter, cocoa. Half Diets: Indian meal porridge and milk, toast, cocoa, fruit. [Pg 114]

MONDAY.

“Breakfast.—Full Diets: Oatmeal and milk, bread and butter, poached eggs on toast, coffee with milk and sugar. Half Diets: Oatmeal, eggs on toast, coffee, fresh fruit.

Dinner.—Full Diets: Soup, bread, roast lamb, spaghetti, tomatoes or lima beans, rice, prune or cottage pudding. Half Diets: Chicken broth, toast, spaghetti, rice pudding or cottage pudding.

“Supper.—Full Diets: Baked potatoes and bacon or creamed beef on toast, bread and butter, tea, fruits. Half Diets: Hominy and milk, bread and butter or toast, tea, fruit.

TUESDAY.

Breakfast.—Full Diets: Wheat flakes and milk; beef mince or hash, bread and butter, coffee. Half Diets: Wheat flakes, buttered toast, coffee, fresh fish.

Dinner.—Full Diets: Soup, bread, steak, cresses, potatoes, beans or carrots or beets, boiled or baked custards or ice cream. Half Diets: Mutton broth, rice, toast, custard or ice cream.

Supper.—Full Diets: Brown bread and butter, cream cheese or boiled eggs, or sliced beef, fruit, cocoa. Half Diets: Oatmeal jelly and milk, toast, fruit, cocoa.

WEDNESDAY.

Breakfast.—Full Diets: Hominy with milk, lamb mince or lamb with cream sauce, bread, butter, coffee. Half Diets: Hominy with milk, buttered toast, boiled eggs, coffee, fresh fruit.

Dinner.—Full Diets: Soup, bread, chicken, potatoes or rice, peas, tapioca or fruit pudding or custard. Half Diets: Broth, rice, toast, tapioca.

Supper.—Full Diets: Spaghetti and tomato or sliced tomatoes or baked corn, bread and butter, tea, fruit. Half Diets: Wheat flakes and milk, toast, tea, fruit. [Pg 115]

THURSDAY.

Breakfast.—Full Diets: Oatmeal and milk, fresh fish, bread and butter, coffee. Half Diets: Oatmeal and milk, toast, coffee, fresh fruit.

Dinner.—Full Diets: Soup, bread, braised beef, macaroni, spinach or string beans, wine jelly or fruit jelly. Half Diets: Chicken broth, macaroni, toast, wine jelly.

Supper.—Full Diets: Beef stew or cream toast or pea soup, bread and butter, cake, fruit, cocoa. Half Diets: Cream toast, cocoa, fruit.

FRIDAY.

Breakfast.—Full Diets: Wheat flakes and milk, scrambled eggs on toast, bread and butter. Half Diets: Wheat flakes and milk, eggs, toast, coffee, fresh fruit.

Dinner.—Full Diets: Soup, bread, fish, potatoes, peas or tomatoes, bread pudding or Indian pudding or ice cream. Half Diets: Lamb broth, rice, bread pudding or ice cream.

Supper.—Full Diets: Chowder or boiled eggs, bread and butter, tea, fruit. Half Diets: Oatmeal jelly, toast, tea, fruit.

SATURDAY.

Breakfast.—Full Diets: Indian meal porridge and maple syrup or milk, beef ragout, bread and butter, coffee. Half Diets: Indian porridge, toast, coffee.

“Dinner.—Full Diets: Soup, bread, steak, potatoes, cauliflower or squash. Half Diets: Chicken broth, toast, rice, rennet custard, blanc mange.

Supper.—Full Diets: Lamb stew or baked beans, bread and butter, tea, fruit. Half Diets: Wheat flakes and milk, toast, tea, fruit.

“Food which may be ordered by resident or attending physician when daily diet is not adequate or suitable: Beef steak, chops, chicken, beef jelly, chicken jelly, scraped beef balls, raw beef sandwiches, [Pg 116] clam broth, crackers, extra eggs and milk, gruels, oatmeal jelly, wine or fruit jelly, cold beef extract, made with hydrochloric acid.”—Practical Dietetics.Thompson.

MENUS FOR NITROGENOUS DIET.

A nitrogenous diet is one in which the use of starchy foods is greatly restricted, if not entirely forbidden. Sugars and acids are also prohibited in many cases. This diet is used chiefly in certain forms of digestive disorder and occasionally in some general diseases. Bread is usually allowed in the form of zwieback, crisp toast, Graham bread or shredded wheat biscuits. Where sugar is prohibited, saccharine or sweetina may be used for sweetening. The latter can be secured either through grocers who handle special food products, or through druggists. Where the ordinary bread is forbidden, the use of gum gluten or gluten flour—a wheaten flour from which the starch has been wholly or partially washed—may be necessary. Many gross adulterations of gluten products are on the market and care should be exercised to see that the product furnished is up to a certain standard and certified. The State Board of Health of New Hampshire has announced that “standard gluten flour must contain at least 30 per cent of proteid and not over 48 per cent of starch.” Recipes for using the gluten flour are easily obtained and a variety of biscuits, wafers and bread may be secured.

Breakfast.—Omelette, crisp buttered toast, coffee, cream.

Dinner.—Strained vegetable soup, gluten wafers, lamb chop, lettuce salad, snow pudding with soft egg custard, tea.

Supper.—Oyster broth, gluten biscuits, celery, cottage cheese, cream, tea.

Breakfast.—Broiled beefsteak, crisp toast, coffee, cream. [Pg 117]

Dinner.—Pea puree, gluten wafers, whitefish, celery, egg and lettuce salad, Graham bread, coffee jelly with whipped cream.

Supper.—Cold roast beef; cress; gluten biscuit, baked custard.

Breakfast.—Broiled fish; zwieback; soft boiled egg; coffee, cream.

Dinner.—Chicken broth; gluten wafers; beef (steak or roast), string beans, Graham bread, junket.

Supper.—Bean soup strained; chicken salad, Graham bread, sherbet, milk.

Breakfast.—Scrambled eggs with shredded wheat biscuits, cresses, coffee.

Dinner.—Bouillon, mutton chop, spinach, Graham bread; junket-ice cream; tea.

Supper.—Pea puree, fish salad, cottage cheese on lettuce; gluten biscuits, tea.

Breakfast.—Omelette with chopped parsley, cold tongue, crisp toast, coffee.

Dinner.—Celery broth, gluten wafers, minced chicken, string beans, ice cream.

Supper.—Raw oysters, gluten wafers, lettuce and egg salad, bran biscuit, Spanish cream.

MENUS FOR A FARINACEOUS DIET.

A farinaceous dietary is not infrequently called for in hospitals. In certain forms of kidney disease it is an important part of the treatment. In this diet all flesh foods are forbidden. Milk and butter are allowed and certain fruits. Eggs, if used at all, must be used very sparingly.

Breakfast.—Orange, wheat breakfast food, baked potato, rolls, coffee.

Dinner.—Asparagus soup, riced potato, tomato salad, tapioca cream.

[Pg 118]

Supper.—Creamed macaroni, corn muffins, white bread, prune whip.

Breakfast.—Apple sauce, oatmeal porridge, buttered toast, coffee.

Dinner.—Barley soup, crackers, baked potato, scalloped corn, blanc mange with apple jelly.

Supper.—Potato puree, crackers, macaroni with tomatoes, white and brown bread, pears.

Breakfast.—Baked apple, hominy, corn bread, toast, coffee.

Dinner.—Tomato soup, crackers, scalloped potatoes, white and brown bread, apple whip.

Supper.—Potato puree, baked rice, bran biscuits, stewed prunes, cocoa.

MENU FOR A TYPHOID FEVER DIETARY.

CONVALESCENT DIETARY.

Beginning three or four days after temperature remains normal:

FIRST DAY.

[Pg 119]

SECOND DAY.

THIRD DAY.

SUPPLIES FOR ONE HUNDRED PERSONS
FOR THIRTY DAYS.

Austin Flint gives the following estimate of food supplies for the New York State Hospital:

Meat, with bone, including fresh and salted fish  
and poultry.Total 2,250 lbs.
Flour (may be partly substituted for by corn  
meal and macaroni) 2,250 lbs.
Potatoes 2,250 lbs.
Milk 1,500 qts.
Eggs 250 doz.
Sugar 490 lbs.
Butter 430 lbs.
Cheese 215 lbs.
Rice 108 lbs.
Hominy 108 lbs.
Oatmeal 108 lbs.
Coffee 180 lbs.
Tea 26 lbs.

[Pg 120]

CHAPTER XI.

Hospital Hygiene

Some sage has remarked that men and women are doomed, from birth to the grave, to combat three things—disease, dirt and the devil. With a great many of the human race, the effort put forth to oppose either one of the D’s is so weak that it could scarcely be called a combat. The D’s are on hand, when the first breath is drawn, and the unfortunate individual weakly yields to force of circumstances. If he does not succumb to their influence early in life, he drags through an existence somehow and calls it living. But in a hospital, if the health of the workers is to be preserved, if the hopes of those who come as seekers of health are not to be defeated, if life for any of its inmates is to be considered safe, then nothing less than an unceasing war, a hand-to-hand combat with the three D’s must be maintained.

Prevention of Disease

Preventive medicine and preventive nursing are each year assuming a larger place in the study not only of those who deal with disease, but of the public in general, and in no place is such knowledge of greater importance than in a hospital. To Florence Nightingale we are under a debt of gratitude for giving to the world some of its first and best lessons on hospital sanitation. When she, with her corps of English nurses, entered the huge hospital in Scutari in 1856 and began her work among the six thousand wounded soldiers, the disorder and filth and consequent suffering was appalling. She shocked the propriety of some of [Pg 121] the army officials beyond measure, but she saved lives. She transformed the hospital, and the haughty officials who on her arrival in astonishment had remarked: “Fancy! Some women have come to the hospital! A Miss Nightingale, with a force of assistants. Was anything ever more improper than women in such a place?” learned in less than a week some lessons they were sadly in need of from that self-same woman. Much of her teaching on hospital sanitation we have not yet outgrown, in spite of all the progress we have made.

In the average home, under the best conditions, the skill of the intelligent housewife is taxed to the utmost to prevent disease from invading its precincts. How much the more vigilance is required in a hospital with all its adverse influences to contend with? Many years ago a medical officer of a health department in England, in speaking on this subject, said:

“That which makes the healthiest house makes likewise the healthiest hospital; the same fastidious and universal cleanliness, the same never-ceasing vigilance against the thousand forms in which dirt may disguise itself, in air, in soil and water, in walls and floors and ceilings, in dress and bedding and furniture, in pots and pans and pails, in sinks and drains and dust-bins; it is but the same principle of management, but with immeasureably greater vigilance and skill; for the establishment which has to be kept in such exquisite perfection of cleanliness is an establishment which never rests from fouling itself; nor are there any products of its foulness, not even the least odorous of such products, which ought not to be regarded as poisons. Above all this applies to the fouling of the air within hospital wards by exhalations from the persons of the sick. In such exhalations are embodied the most terrible powers of disease, the spreading flames, as it were, of some infections and the explosive fuel of others; and any [Pg 122] air in which they are allowed to accumulate soon becomes a very atmosphere of death.”

The subject of hospital sanitation is so large, so many-sided, that to do it justice in the space allotted is impossible. It involves a consideration of the site of the hospital and the plans, the separation of the departments, the materials used in its construction, its ventilating system, its plumbing and sewerage connection, its food and water supplies, its facilities for isolation of infectious diseases, for disinfection, for disposal of the waste and refuse from the various departments, and its arrangement for living conditions for those on whom the responsibility of carrying on the work of the hospital involves.

Sanitary Kitchens
Pure Food

The days of hospital gangrene, of outbreaks of erysipelas, pyaemia and puerperal fever in hospitals have passed, but we have still too many cases of typhoid fever, diphtheria and other diseases developing in hospitals and institutions of various kinds in this twentieth century. The teachings of Pasteur and Lister that bacteria are the cause of a large number of the ills that flesh is heir to, and that these micro-organisms may be destroyed by the use of proper means—these teachings have revolutionized some departments of hospital work. One very important department that has not been entirely revolutionized is the hospital kitchen. The number of sanitary kitchens is increasing, it is true, but in many hospitals the kitchen is out of harmony with the other departments. It is not unusual to find a beautiful and imposing front entrance, to find marble and tile entering largely into the construction of many parts of the building, to find a costly modern equipment in many departments, and to find the kitchen of that same [Pg 123] institution, dark, too small, poorly equipped, poorly ventilated, cheaply constructed throughout, and thoroughly unsanitary, a splendid place for the development of germs—a place that is, if not a disgrace to the institution, at least far from creditable. Who is to blame? Somebody surely is. Certainly when so much value is being placed on the food supplies sent from the kitchen as weapons in the fight with disease no hospital built in the twentieth century should have in it a kitchen that is not in keeping with the rest of the building, that will not bear critical inspection, that cannot be shown with as much confidence and satisfaction as the operating room or the wards. And not only in the situation, construction and equipment of the hospital kitchen is this lack of progress evident, but in no part of the hospital is the germ theory so little regarded in practical work. Pure blood is regarded as one of the great essentials of health, and much study has been devoted to that important part of the human system. The most perfect apparatus for examining the blood is considered none too good, but how often in the average hospital are tests applied to the materials from which blood is made? Are all butchers and bakers and grocers and dairymen so honorable that occasional analysis of the products supplied is quite unnecessary? An examination of the ice supply in a certain hospital, not many months ago, led to the discovery of the ice as the cause of an epidemic of typhoid fever, that seriously embarrassed the institution. A careful inquiry into such matters might have prevented serious embarrassments in a number of other institutions within recent years. Prevention is better than cure, and far cheaper. It is always better to be sure than sorry, and now that scientific research is popular, it ought to be possible for every hospital to arrange for periodical examination of its food and water supplies. [Pg 124]

Filters and Water

Filters are now regarded as essential in every hospital, but it is quite possible for too much confidence to be placed in filters. The filter that will run fast is likely to be the favorite, whether it really filters or not. Elmer G. Horton, B. S., bacteriologist to the Ohio State Board of Health, in speaking of the weaknesses of domestic filters, says:

“If the rate of filtration is not moderately fast, the consumer will not buy. The maker realizes this, and slights efficiency in order to gain a more rapid flow. The filtering material is made coarser or more porous, and, with the resistance decreased, the water passes through more readily, and so do the bacteria.

“No filter will continuously yield a perfect effluent without being often cleaned. Whatever a filter takes out of the water remains in the filter until removed by cleansing; and if that cleansing be delayed the filter will dispose of the accumulated filth by way of the passing water. We must expect an unclean or foul filter to yield an effluent of like character, although that effluent may appear clear.

“After all, the more harmful things in a water are not so much the easily discernible ones—mud, floating vegetation, iron, odors, etc., but the invisible living micro-organisms, and especially those forms capable of producing disease in man. It is true, and greatly to be regretted, that clearness is the criterion by which the average citizen measures the efficiency of his filter, but let it never be forgotten that the clearness of a water is no guarantee of its purity. This bottle of water which I pass around is clear enough, and no doubt looks good enough to drink, but it actually contains not thousands but millions of typhoid fever bacilli. [Pg 125]

“A sample of filtered water from the filter in the dining room of a large boarding-house was examined and found to contain five times as many bacteria as the unfiltered water.

“Recently samples of filtered and unfiltered water were taken from a filter in one of the offices of the State House. The 2,200 bacteria per cc. of the untreated water had increased to 14,000 in passing through their “germ-proof” filter. Organic matter collects in the filter and serves as food, and there is developed a breeding nest for the bacteria.”

Parkes in his manual of hygiene suggests this plan for the examination of water: First, a physical examination of water; second, a microscopical examination of suspended matters and sediment; third, a quantitative examination of dissolved solids; fourth, a biological examination.

Air

While it is important for every hospital to know something of the quality of the food and water supplied to its inmates, it is of still greater importance to know that in every department of the hospital there is provision for the entrance of pure air and the exit of impure air. We may live without food for days or weeks, but the breath of life is the first great essential of existence. Deprived of it and death results. Poison it and deterioration in health results. “Bountiful nature has supplied an inexhaustible supply of this essential, and the means for its purification. Only when man’s ingenuity or stupidity thwarts her efforts, confines the air, prevents its free circulation, does it retain the poison he has contributed to it.”

A large part of the science of sanitation can be summed up in one word: [Pg 126] cleanliness; clean air, clean food, clean water, clean rooms, clean beds and bed linen, clean occupants of the beds, and clean appliances.

Dirt

Dirt has been defined as “matter out of place.” To have the ability to recognize when matter becomes dirt, and get it into its proper place and proper form, is to have the key to hospital sanitation. It means a strict attention to what elsewhere might be considered small details. It is said that under the microscope the dust of an ordinary house resolves itself into soot, minute particles of cotton and wool fibres, spores of bacteria, starch grains, pulverized straw, epithelial and epidermic debris, and fragments of food. It consists to a great extent of organic substance, capable of decomposition. When added to this we have some of the constituents of dust common to a hospital, such as shreds of linen or wool from soiled bedding, pieces of hair, dried particles of pus, blood, and human tissue, crystals of urine, etc., the consideration of how to get dust into its proper place and form, how to deal with it, so that it is not a menace to both the healthy and sick inmates, is no small or unimportant part of hospital management.

Flies

Flies—the common, innocent-looking house flies, that formerly were regarded simply as annoyances to be endured, have been found to be among the most active agents in the spread of disease. Now that the germ theory is so well understood, it is not difficult to see how this takes place. Victor Vaughan, a member of the Army Medical Commission during the Spanish-American war, states as follows his observations regarding the fly as an agent in spreading typhoid fever in the camps: “They swarmed over fecal matter in the latrines. They visited and fed on food prepared for soldiers in the mess tents. In some instances when [Pg 127] lime had been spread over the contents of latrines, flies, with their feet white with lime, were seen walking over the food. Officers whose mess tents were protected by means of screens suffered less proportionately than those whose tents were not so protected.”

Dr. M. J. Rosenau, in his valuable book on “Disinfection and Disinfectants,” expresses his opinion with no uncertain sound on the fly question when he says: “In fact, as our knowledge of the subject increases we find that domestic animals and vermin are playing a very conspicuous role in the transmission of disease. So dangerous do we now know that the fly and mosquito may be, that when the matter is more generally understood, it should be a greater reproach to the housewife to have these dangerous vermin in the household than to have bedbugs.”

Where dressings soiled with pus and excreta have constantly to be handled, as in a hospital, the presence of flies is a real source of danger that no careful housekeeper will ignore. To keep them out of the building, and manage so that no substance about the exterior may be left to attract them, means that a systematic inspection of the premises must be made, to see that fruit peelings or scraps of food are not thrown from the windows, that careful and prompt disposal of all refuse is accomplished, that scrupulous cleanliness in and about the institution is practiced, and that properly fitting screen windows and doors are in place early in the season, and left till cold weather has caused the fly to leave for parts unknown.

Garbage

The disposal of garbage and the waste accumulation from the wards forms one of the most serious problems that confronts the hospital housekeeper. There is but one safe method of disposal and that is by cremation, prompt and swift and sure. The too common method of storing garbage in large cans, and allowing it to vitiate the air with its [Pg 128] obnoxious odors, and attract to itself flies an other vermin, till the city garbage collector gets around to remove it, is a practice that ought to be abandoned as speedily as possible by every institution. Much responsibility rests upon the superintendent in such matters. She alone cannot effect desired improvements, but she realizes the need as no member of the board can, and she ought to tactfully educate the board and urge the necessity of proper appliances for this purpose. Recently twenty letters were sent out to twenty various sized hospitals inquiring as to the methods used in disposing of soiled dressings and refuse from the wards. Answers were received from almost if not all, and there was a general agreement that cremation was the only proper method of disposal. However, in only three or four of the twenty had any provision been made in the plans of the hospital for this very important work. Some hospitals burnt them in the furnace, some in the laundry stove in the basement, some covered them up and carried them to the laundry stove in an outbuilding, some had them carted away to the city dumping ground. From one Chicago hospital of whom inquiry was made we had the following report: We have a water heater and garbage burner which runs day and night, and into this burner we put all of our soiled dressings and garbage of every description at any hour, day or night. They are consumed without causing us any trouble whatever. We certainly find it a great comfort not to have any garbage, not even a garbage box or barrel on the premises. Our pails and baskets are brought down to the boiler room twice daily, and there immediately emptied into the burner. The pails are scalded and cleansed, so that we keep everything sweet and clean.” [Pg 129]

From a New England hospital we had the following report: “For four years we have used a crematory for disposing of soiled dressings, and have found it most satisfactory. It has gas burners and could be placed in a bath room if it is large. With such a crematory on each floor dressings can be burned immediately, and thus the objectionable dressing or refuse pail be dispensed with. A careful nurse will turn out the gas after the dressings are dry and ignited, and the expense of the apparatus will thus be very slight.”

Through the courtesy of the Morse-Boulger Co., who have installed crematories in a considerable number of large hospitals in the east and in some smaller institutions as well, we are able to present a cut of a crematory for a small hospital.

GARBAGE CREMATORY

Garbage Crematories

The crematories are built in many sizes to conform to the location. They provide a medium for the disposal on the premises with the utmost [Pg 130] rapidity and economy of every class of waste produced in a hospital. They can be operated with any available fuel and all are provided with perfectly efficient means of consuming the smoke and inflammable gases thrown off by the burning material. These crematories can be placed in the basement or cellar if necessary and connected directly with the chimney or smoke pipes, from the heaters or steam boilers of a building, or can be placed outside when deemed desirable.

In order to ascertain some facts concerning the working of these crematories, letters of inquiry were also sent to a number of hospitals in which the Morse-Boulger crematories are in use, and without exception the reports were most favorable. The following from one of the largest Philadelphia hospitals is characteristic of all the reports received and goes to show that there is no risk of unsatisfactory working in such an apparatus:

“It is true that we have a Morse-Boulger garbage destructor, and it has been in service about four years. The capacity of the chamber is about twenty barrels. In selecting the size we had in view the quantity of garbage that we have to burn each twenty-four hours, so that the chamber would hold all the garbage produced in twenty-four hours at one charging, thus relieving the necessity of keeping the fire going all the time. As it is now, the fire is started in our crematory about 4 o’clock in the afternoon, and by 10 o’clock at night the charge is all burned out. This gives the apparatus time to cool off, so that the night fireman can clean it out before he goes off duty and leave it ready for re-charging in the morning.

“The destructor has worked very satisfactorily for us, and burns the whole of our garbage with about 500 pounds of buckwheat coal per day, which means an expense of from forty to seventy cents a day, owing to the price one has to pay for the coal. [Pg 131]

“I do not believe you can recommend too strongly the use of such an apparatus for hospital purposes.”

Other and cheaper crematories for the use of the smaller hospitals are in the market, they being efficient, so far as the capacity goes, and the price being within the reach of practically every small hospital. An illustration of one of the best of these cheaper crematories, made by the Bramhall-Deane Co., is here shown.

Certainly every institution with new buildings or additions in course of erection that has not yet made provision for the sanitary disposal of garbage and refuse, should keep this matter in view as one of the improvements to be arranged for as speedily as possible.

There is no royal road to safety in a hospital. There are hidden dangers on every side. “Eternal vigilance is the price of safety.” The most expensive and wisely constructed building and the best modern equipment will not long remain in a sanitary condition unless watchful care is exercised, and intelligence and energy applied to the eradication of dirt, and conditions that favor the multiplication of the enemies to life and health that are ever present.

In the regular daily cleaning of a hospital no “royal road” has been discovered. There are on the market a great variety of washing powders, scouring soaps and such things, but nothing has been discovered that quite takes the place of human labor.


[Pg 132]

CHAPTER XII.

The Help Question

When one considers the numbers of boxes of good brass pens, the quarts of ink, and the reams of paper (to say nothing of such cheap things as brains and time and vitality) that have been consumed within the last score of years, in bringing forward “solutions of the servant problem;” when one sees that self-same problem, still to the front, dangling in the air as it were, refusing to settle itself or be settled, it surely ought to be sufficient to deter all but the most audacious from touching it. Instead of being solved, it is growing larger and more difficult to deal with. It is not much wonder that men suggest that women demonstrate their ability to manage their own domestic domain, and get the servant question settled, before seeking to get into politics and take a hand in the government of the state and nation. However, a prominent member of the board of a certain hospital remarked optimistically not long ago, that “since the Irish land question seemed to be getting worked out,” she had some hope that somewhere, around some unexpected corner, some bright man or woman would discover a means of really solving “the servant problem.” But up to the present moment that discovery has not been made, and let it be understood here and now, that a solution of that problem is not attempted here. Neither is any special claim made for originality, for the subject has been so thoroughly gone over that it seems there is nothing new to be said. But [Pg 133] difficult as the subject may be to deal with, either theoretically or practically, it cannot well be ignored in dealing with hospital housekeeping, since it consumes no small portion of the time and energy of the housekeeper, and is of vital importance to the institution.

Numbers of Servants

Perhaps the best place to attack the subject would be to calculate how many servants are necessary to do the work in a certain hospital of a certain capacity. But at the outset one is baffled at that point because institutions differ so very greatly. Some buildings are much more difficult to keep clean, more difficult to get work done in because of mistakes in construction that entail more labor. Servants also differ in their ability, standards of work vary, and the organization of the working force varies. Some institutions require nurses to do all the sweeping of wards and private rooms, others have it all done by maids. Some hospitals require nurses to wash ward dishes. In others nurses do none of that work. In a place where soft coal is used more help will be required to maintain the same standard of cleanliness throughout the building, than if that difficulty had not to be contended with. Some institutions have no laundry work done on the premises, others have it all done at home. Some hospitals bake all their own bread, others bake none. All these and many other things have to be considered in reckoning the number of servants required. Each institution must be largely a law unto itself in this matter.

In a paper read at the Philadelphia meeting of hospital superintendents, Mr. Lathrop threw out a suggestion about engaging servants that might well be adopted by hospitals in general. In referring to the system of hospital records and reports used in Roosevelt Hospital, he said: “A book, entitled ‘A List of Officers and Employees,’ alphabetically arranged, contains the signature of each to a [Pg 134] contract at the head of the page. The contract reads as follows:

Contract

“I, the undersigned, accept the terms herein mentioned, agree to do faithfully the work assigned to me and to conform to all rules of the hospital while in its employment; and it is distinctly understood and agreed that whether I am paid by the day, week, month or year, my engagement is to terminate upon notice by the superintendent that my services are no longer required; and upon payment being made to me for the actual time of service rendered, I agree to accept and receipt for the same in full consideration for all demands against the institution. The hospital reserves the right to deduct for absence from whatever cause.”

This contract reduces to a minimum the difficulty in getting rid of undesirable help without unpleasantness. The last clause is especially important. The only possible way of making an impression on some servants, and keeping them up to the mark in punctuality, is by touching their pocket. When the absence or tardiness occurs from a legitimate cause, as in illness, it may not be best, if the time lost is trifling, to make any deduction, but at any rate the servant should understand that part of the agreement, and when it is not enforced he will be likely to have a due appreciation of the fact.

Merit System

When a hospital pays a fair rate of wages to its employees it is in a position to insist on certain conditions, and to maintain certain standards regarding work in all departments. If it pays the lowest market price for such labor it must expect its servants to remain only till something better is found. The merit system has been successfully used in other lines of work, and ought to yield equally good results in [Pg 135] a hospital. If after giving a servant a fair trial, he is found faithful and anxious to please and capable, he ought to be shown that these qualities are appreciated. If he was engaged for fifteen dollars a month, a raise of wages of one dollar every three or four months until it has reached a certain point, would give him some inducement to stay. The habit of expressing satisfaction with work well done is a powerful incentive to continuance in well doing and better service in the future. Servants are all human. They need reproof and correction, but need quite as much the kind word of appreciation of their efforts. There are but few people who will long continue to do their best if they think nobody cares or notices it.

Schedule of Work

When servants enter the employ of the hospital, it is a good plan to have some kind of schedule of the routine work ready to give them. Certain duties will have to be performed every day, others on stated days of the week. Usually the housekeeper is subject to demands of all kinds. It is necessary for her to study how to get routine work done well, with the least tax on her memory or vitality, and the schedule will help in that direction. Proper instruction at the beginning is always important. Many a servant has become discouraged in a few days and left his place vacant, when a patient explanation of what to do, and how to do what seemed to be expected of him, would have developed a capable worker. It is never a good plan to have such fixed ideas as to how a desired end should be reached that no other method will be accepted. If servants have been accustomed to one certain way of doing things, and their way yields as good results as some others, it is well for the housekeeper to let them follow their own plans unless it is found to entail a waste of time and material. In a hospital where there [Pg 136] is such a multiplicity of details to be attended to, no housekeeper can afford to waste much time over non-essentials. The point is to be able to recognize non-essentials and not to ignore things of importance. If she sees that time and material can be saved by doing things according to her methods, a suggestion and a little teaching ought to effect the desired change. If it does not, if they do not try to improve, and refuse to apply the instruction received, then it is better to let them go and try to secure more tractable material.

There is seldom a time when all help is just what the housekeeper wants, and it is safe to predict there never will be. Some will need more supervision than others. Some will remember a thing if told once, others will need to have it repeated again and again. One would naturally expect that a thing that had to be done every day would soon be done as a matter of habit, but this is by no means the case, as every housekeeper knows. It is not enough to say: “This thing must be done every day.” Somebody must be on the watch to see that it is done. Some servants when they find a neglect passes unnoticed will be very likely to repeat it, and the lack of proper supervision accounts for the general slipshod condition of the domestic department of many institutions. Usually there are enough hands to do the work if they were kept up to the mark and properly supervised.

In the matter of cleanliness and neatness a great difference in standards is observed in visiting institutions. Suffice it to say that in a hospital, above all other places, there should not be a spot from attic to basement that the superintendent would not wish to throw open for inspection. Ice-boxes, kitchens, pantries, storerooms, basement, laundry, all should be models in respect to cleanliness and good order.

Military rule, or organization based on it, is supposed to prevail to a [Pg 137] large extent in the training school, and it is equally important for it to prevail throughout the other departments of the hospital. While with nations, civil laws undergo changes as the spirit of the times change, yet the fundamental principles of military organization remain unchanged. There is a distinct gradation of officers, and every man is recognized only in his station. If a private soldier has a grievance or a report, he is expected to state it to the officer immediately above him. The captain cannot officially approach a general and ignore the intermediate officers. The general gives his orders to the officer next to him in rank, and they pass down the line from rank to rank. Only thus can a general hope to command the army of a nation successfully. Each man is expected to be in his place and attend to the duties of his position and not meddle with the affairs of others. Practically the same system prevails in large business corporations, and no better basis for organizing a working force of an institution has been discovered.

Rules

Much as the average American dislikes rules, the fact remains that some are necessary. The business is greatly overdone in some hospitals, in others too much laxity exists, and this inevitably tends to lower the tone of the institution. For the domestic department it is wise to have cards with a set of general rules printed and framed and posted in conspicuous places to serve as reminders. Each hospital superintendent will have his own ideas of what general rules should be made for the government of his hospital employees, but a specimen set of rules may not be out of order. [Pg 138]

1. All services are at certain rates per month or week for time actually served. Employees desiring to leave shall give one week’s notice to the superintendent. The superintendent reserves the right to summarily discharge any employee for any cause when his presence is detrimental to the interests of the institution.

2. No reading or smoking in bed at night is allowed and smoking or chewing of tobacco is forbidden during working hours.

3. No duplicate keys for any part of the hospital shall be made except for and by the hospital. All persons having hospital keys shall deliver them to the superintendent if absence over night is anticipated.

4. No employee shall enter the room of another at the hospital without knocking and waiting for reply. Female employees shall on no account visit men’s rooms nor male employees women’s rooms.

5. No employee, unless duty requires it, shall enter the wards without permission of the superintendent, nor shall they enter departments where they have no duty except on business.

6. Employees shall be prompt at meals. Those coming late will be expected to explain the reason. No cooking, heating or keeping of tea, coffee, or food shall be allowed on the premises other than in places provided for them and by persons employed for such duties.

7. All employees will, when practicable, be allowed two half days off duty each month and when convenient a part of each Sunday, subject to the needs of the institution and the discretion of the superintendent.

8. Discharged employees are not entitled to the freedom of the premises and must stop in the waiting-room, like other visitors, while those discharged for cause are not admitted except as patients or on business to the superintendent.

9. Employees shall attend to matters out of repair in their departments, and report all articles broken or injured to the head of their department. Nails shall not be driven into the building or furniture without permission. Scratching of matches on walls is forbidden.

10. The house will be closed at 10:30 p. m. Employees desiring late leave must get permission from the matron or superintendent. No employee shall go in or out any window, except those used as doors, unless engaged in working about the same.

11. Employees shall not keep in their possession nor have on the premises, spirituous liquors, and the intoxication of any employee shall be the cause of instant dismissal. [Pg 139]

12. Loitering around the kitchen during working hours, or at any time, by those not employed there is prohibited. Kitchen employees are not allowed to linger around the kitchen when off duty.

13. All persons connected with the hospital are expected to be civil and polite at all times. Sleeping rooms, wardrobes, dressers, closets, cupboards, etc., shall be subject to inspection at any time. Rooms shall be in order and beds made by 10 a. m. and shall at all times be kept clean, orderly and free from vermin.

14. No one connected with the hospital shall remove the property, however small, from one room or ward to another without the permission of the superintendent.

15. Employees are expected by precept and example to assist in keeping the hospital quiet and orderly and free from dust, dirt and foul air. Boisterous or profane language and whistling or singing cannot be permitted.

16. Cleanliness and neatness in appearance, habits and work are imperative. All employees are expected to be punctual in reporting for duty. Visitors to employees are not allowed during working hours. In exceptional cases permission may be obtained from the superintendent.

17. All articles broken or destroyed will be charged to the person breaking them, at cost price.

Having made rules, it becomes necessary to see to their enforcement. Exceptions should be few and far between. A rule that is not enforced weakens the institutional government, and had better never have been made. If it is good and necessary let it be enforced, if it is neither good nor necessary let it be abolished.

The question of incompatibility of temper among servants is a common perplexity. When it occurs it is just as well to plan for a separation, letting the one who seems to be the strongest element of discord go.

In feeding help there should be always plenty provided—the quality being about what is provided for ward patients. A separate bill of fare for them would entail extra cost, both for material and labor, and they would be none the better for it.

Servants’ Dining Rooms

Is it too much to hope, that, sometime, all hospitals will have a [Pg 140] servants’ dining room, where, apart from the heat and odor of the kitchen, they can take their meals in comfort like respectable people? Many of those who have labored on the servant problem seem to have begun at the top for a solution, instead of getting down to the foundations to build up a system. They have sought to establish training schools and give diplomas, believing that was the one thing needful to dignify the position of servants and make them happy and contented in that kind of work. There is certainly no objection to plans for training, providing they are not allowed to obscure other features bearing on the problem. But one does not need to live more than a day in some homes or institutions to find one reason for the prevailing discontent among servants as a class. A hospital that provides an attractive dining room for its help (which could also be used as a reception room for their friends), that sees that they have good bath rooms, lavatories, toilet rooms and sleeping rooms, may expect to attract a superior class of servants, who will have some inducement to remain where provision has been made for their comfort. They will have more respect for themselves and for the institution and better service can be expected.

Sleeping Rooms

There is a possibility of people becoming so charitable that they forget to be just. Some are so intent on providing the most modern equipment for the care of the unknown indigent patient that they entirely overlook the necessity of proper living conditions for those who must help in caring for the unknown indigent. How many hospital managers would throw open with pride, for the inspection of a party of visitors, the doors of their servants’ sleeping quarters, as they do the doors to the free wards? While text-books and teachers are emphasizing the necessity of pure air, the need of a certain number of [Pg 141] cubic feet of air-space for each occupant of every sleeping room, hospital authorities are defying these self-same rules of hygiene, by compelling their servants (and often nurses, too) to sleep in crowded quarters without proper means of ventilation, and which sometimes the direct rays of the sun can never penetrate. It is nothing uncommon to find six or eight people crowded into one dormitory not larger than 10x15, and that not only in a New York tenement but in a modern hospital. Every intelligent person professes to believe that “Pure air is as important as pure food in the production of vital energy of the body and mind, but it is another case of not living according to one’s belief. What we greatly need is a realization of the fact that hygiene is not alone a science to be studied, but an art to be practiced, in the hospital, in all its departments and elsewhere.”

Attire

The working attire of the servants may seem a trifling thing to mention, but it too is an indication of the standards of the management in that respect. A hospital is no place for a slovenly, untidy man or woman. If they have not sufficient self respect to keep themselves clean and neatly clad they certainly cannot be expected to cook and serve food in a respectable, appetizing, healthful way or do their work in a cleanly manner. “The apparel oft proclaims the man.” It oft proclaims the institution, too. If the hospital is to make a desirable reputation and maintain it, heads of departments must be on the alert in minor as well as major matters. A chain is no stronger than its weakest link, and each individual in the long human chain of hospital employees is either helping to make or mar the good reputation of the institution.

Housekeeper’s Relation to Servants

The housekeeper’s relation to the servants is too large a subject to [Pg 142] more than touch, but it is altogether too important to be left out entirely. It is well to bear in mind the fact that laxity does not mean kindness, nor does it always mean “good nature,” as some people appear to believe. Neither does severity mean dignity. It is quite possible to be dignified and approachable at the same time. It is quite possible to be systematic about methods and work, and strict in the observance of the rules of the institution, and at the same time thoroughly kind and tender hearted and womanly. The housekeeper who lets her servants know that she sympathizes with them in the trials and difficulties incident to their life will have much less trouble in governing them than the one who maintains a frigid air, shuts her eyes and ears to things that are large to them, and treats them like machines. There are a hundred ways in which she can touch their lives helpfully, and influence them to higher ideals if she chooses. Questions of dress, health, morals all suggest themselves at this point. The all too prevalent tendency with the servant class to spend their hard-earned dollars in silks, cheap feathers and tawdry finery, to follow the fashions, even if they have to go in debt, is something that can be observed in the hospital as elsewhere. This often has a bearing on health. Many who have spent their all in jewelry or finery which they did not need, are obliged to go without proper shoes, stockings, under-clothing and things that are really essential for health and comfort. If the housekeeper has won the respect and confidence of her help, she ought to have a decided influence in checking this tendency among her maids and promoting habits of thrift and wise expenditure.

Proper hours for retiring is another matter that will come in the housekeeping province as it relates to servants, and one that no institution can afford to neglect. Late hours are neither conducive to [Pg 143] good health nor good morals, and certainly do not help in getting good work done. For all these reasons the housekeeper, where the help are housed on the premises, should insist that the same hours that nurses are obliged to observe in getting home, and getting lights turned out should be observed in the servants’ quarters. Whether she wants the responsibility or not, whether she thinks it or not, the influence of the head of the domestic department is felt in the lives of her servants. Characters are being molded and built up that will leave their impress on future generations. The world of the average servant is as a rule very small. They live on the surface of things. Trifles seem large sometimes. At other times very serious and far-reaching questions seem to them quite unimportant. Education of the conscience and of the hand can go on, ought to go on, together.


[Pg 144]

CHAPTER XIII.

The Problem of Waste

Next in importance to the three vital questions which daily confront the hospital housekeeper, in common with other mortals—“What shall we eat, what shall we drink and wherewithal shall we be clothed?” comes the question of how to prevent waste of the money and materials supplied for carrying on the work of the hospital. Few institutions afford such abundant opportunities for waste, along so many different lines. The sources of leaks seem to be endless. The individuals who are responsible for waste may be found in all departments, and represent all degrees of intelligence. The varied composition of the hospital household, the emergencies of the life and the fact that of necessity in a hospital of even moderate size the work is divided into departments with separate heads, renders the problem of the prevention of waste exceedingly complicated. Then the lack of any thorough system of inspection, the loose method of keeping accounts, and rendering reports of expenditure and income, the absence of uniformity of methods, makes intelligent comparison with other institutions difficult, if not impossible. Because of these conditions, waste may constantly go on in an institution where apparently everyone is trying to be economical.

Main Causes

There are usually three or four main causes existing where habitual waste goes on:

Lack of an accurate system of accounting for supplies. [Pg 145]

Lack of careful supervision in the use of supplies.

Lack of a general knowledge as to the average amounts of supplies necessary for each department for a given time.

Unwise purchasing and ignorant or careless handling.

(Employing people who “do not know how” is also a frequent source of waste.)

First Steps

It has been well said that the first step toward thrift is taking account of the items. A proper system of accounting for the daily supplies sent to each department will go a long way toward checking extravagance. This system of accounting secures facts about the consumption of supplies, that are absolutely necessary for the detection of extravagance or waste, and it should be adhered to as an important part of the work of every department. The surgical department is one which needs special supervision. While perhaps it would not technically come under the head of housekeeping, it often is in charge of the hospital housekeeper, and in considering the sources of waste it cannot be well omitted. In measures for the prevention of waste, the departments of a hospital should be a unit. Only thus can the problem be handled successfully. Referring to the excessive use of surgical supplies, Dr. John W. Brannan, president of the board of trustees of Bellevue and allied hospitals, New York, in an open letter to Charities has said:

Surgical Department

“I wish to lay especial stress upon the possibility of effecting a very material saving in the use of surgical appliances and expensive drugs in all the hospitals. In order to accomplish this it is necessary to have the goodwill and co-operation and constant thought, not only of the superintendent and his staff, but also of the surgeons and [Pg 146] physicians, both attending and house. If the visiting physicians and surgeons were to exercise the same consideration in the use of surgical dressings and expensive drugs as they do in their private practice among people of moderate means, and exact the same of the house staff; there would be, in my opinion, a marked reduction in the amount of the supply account.

“The following is an example of what can be done in the way of saving in surgical supplies: The attention of the visiting surgeon of one of the divisions of Bellevue Hospital was called about a month ago to the large consumption of gauze in his wards, some 2,100 yards having been used in the previous week. He at once made an investigation, with the result that the next week the amount of gauze consumed was only 1,100 yards, and during the week following that only 610 yards, although the service continued just as active and the patients were cared for fully as well as before.”

The author of “The Commissariat” stated that in the hospitals of London, where the surgical department is diligently supervised, it has been found possible to effect an annual saving amounting to five pounds for each bed, and that without in any way lowering the standard of nursing or treatment.

Utilizing Hospital Waste

At the Boston meeting of the Association of Hospital Superintendents, Dr. F. A. Washburn, Jr., of the Massachusetts General Hospital, in a paper on “Methods of Utilizing Hospital Waste” described the methods used in that hospital to reduce the consumption of gauze and soap. The paper contains so much that is valuable by way of illustrating what might be accomplished and how, that we have requested permission to insert it in this connection.

“Two main principles are involved in reducing hospital expenditures: [Pg 147]

“1st. Using less new material.

“2nd. Utilizing waste material.

“In this paper I will dwell principally upon some of the methods which may be employed in carrying out the second of these two principles, namely, utilizing material which has formerly gone to waste.

“The item of absorbent gauze is a large one in every general hospital. At the Massachusetts General Hospital, in 1902, it amounted to $6,079.81, in 1903, to $5,959.37.

“Up to one year ago, at this hospital, it had been customary to destroy all gauze which had been soiled by blood or pus, and I believe that this was the rule at all hospitals, although some had made an attempt to recover the gauze from their clean cases. In October, 1904, with the consent of the visiting staff, a process of washing and sterilizing all gauze was adopted, and its success has exceeded our expectations.

“In the first eight months of 1904 we used over one hundred and forty miles of new gauze three feet wide. In the first eight months of 1905, we used fifty-one miles. The new gauze used in the first eight months of 1904 would have stretched from Boston nearly to New Haven, Conn., while in a corresponding period of 1905 it would have reached only five miles beyond Providence, R. I. Money actually expended for gauze during the first eight months of 1900 was: 1900, $3,774.01; 1901, $4,275.91; 1902, $3,872.61; 1903, $4,029.22; 1904, $4,366.52; 1905, $1,253.40.

“That shows a saving of about $3,000 in eight months over the cost in 1903 and 1904.

“The method employed is as follows:

“All gauze and bandages from ward dressings, amphitheater and out-patient department and operating rooms is collected in paper bags [Pg 148] and taken to the laundry. It is transferred from these paper bags to open work bags made of cord, these bags being only half filled. The gauze is kept in these bags throughout the rest of the process of washing and the laundry sterilization.

“It is put in soak over night in cold water which is changed several times. The following morning it is put in an iron washer capable of resisting steam pressure up to ten pounds. It is then washed in cold water until the water runs perfectly clear. The gauze is then washed with warm water, soap,and sal soda. After this washing it is rinsed in hot water. After the rinsing, enough hot water is turned into the washer to cover the bags of gauze as they lie on the bottom of the washer. Steam is then turned on to a pressure of ten pounds. A self-registering thermometer placed in the gauze twice showed a temperature of 239° and 240°. The thermometer, which registers on the outside of the washer, showed a temperature of 236° at pressure of ten pounds. This temperature is maintained for one-half hour. During all this process, the washer is moving with a to-and-fro motion, which continually agitates the gauze and presents all parts of it to the action of the water and steam.

“The gauze is then put in the extractor and when dry is sent to the out-patient department, where it is overhauled under the direction of an intelligent maid. It is untangled and straightened, and the maid is instructed to throw out any piece of gauze which is stained or has anything adherent to it. The gauze is again handled by nurses or maids when it is cut and placed in packages for the last sterilization. These women, also, have instruction to look the gauze over carefully for any stained piece or any piece with foreign matter adherent. The final sterilization is then done at a temperature of 250° F., with a pressure of fifteen pounds in the sterilizing room. [Pg 149]

“It is found that the washed gauze is softer and more absorbent than the new gauze. Repeated tests conducted in the pathological laboratory have shown the safety of the process. The overhauling and straightening of the washed gauze involves a very considerable amount of labor, and if it were necessary to hire additional people to do the work the saving would be much less. At the Massachusetts General Hospital we utilize labor that would otherwise go to waste. In our large out-patient department we must have a certain force of messenger boys and maids when the clinic is at its largest and at the busiest hours of the day. Much of the time all this force is not required for running the clinics or cleaning the buildings, and their time is utilized on the gauze.

“So much for the gauze which is recovered and utilized again as gauze. There is a part which is in too small pieces or is too badly tangled to be worth straightening. This material is run through a rag picker and becomes a very light and absorbent lint, which is sterilized and used in dressings where absorbent cotton or oakum is ordinarily used. It is also used in the boiler house in the place of waste for wiping around the engines. Another part of the gauze is thrown out because it is stained with chemicals. These pieces are utilized by the housecleaning force. This process, therefore, means not only less gauze bought, but less absorbent cotton, less oakum, less waste for the engine room. All pieces of compress cloth, many of which have been thrown away in the past, are washed and sterilized by this same process, used over again if large enough, run through the picker if small.

“Packages which are sent to the boiler house to be burned are overhauled and inspected at frequent and irregular intervals, and if it is found that material which should be saved is being wasted, the [Pg 150] responsible head nurse is called to account. Safety pins, rubber dam, knives, forks and spoons are recovered from this inspection. I believe that it will pay to have a systematic inspection by a careful employee of everything brought from any part of the hospital to be destroyed or thrown away. Such a man cannot fail to more than earn his pay and board, nor would his inspection work take the whole of his time.

Soap Making

“About one year ago the Massachusetts General Hospital started to make its own soap. I have endeavored to make a comparison of the cost to the hospital of buying soap for the seven months, February to August, 1904, and making it for the seven months, February to August, 1905.

“We formerly used in the laundry a soap chip for which we paid about 4¾ cents a pound. We used a common yellow bar soap for which we paid 5 to 5½ cents per pound. Savogran for the floors, etc., at 6 cents a pound, and soft soap for ward use at 3½ cents. All these have been nearly or quite replaced by our homemade soft soap, which we find answers all these purposes in a satisfactory manner. We still use a small amount of Savogran on the white tile floors of our surgical building, and a little bar of yellow soap here and there. This latter we shall make ourselves as soon as our stock on hand is used up. But soft soap practically replaces everything except sand soap, toilet soap, soap polish, etc., which we buy as before.

“In the seven months of 1904 under consideration, we paid $535.26 more for Savogran than in the seven months of 1905; $108.48 more for yellow bar soap; $24.99 more for soft soap, and $300.65 more for soap chips, a total of $969.38 more paid for soap effected by our home soap making in [Pg 151] seven months of 1904 than in the seven months of 1905.

“To counterbalance this we received in the seven months of 1905, $255.15 less for grease. Soap making takes about a third of the time of one man, estimated at $177.25 for seven months. Potash cost $293.91. Steam used in cooking soap estimated at $5 per month, $35. A total saving of $268.07 in seven months.

“We have less trouble with our washers in the laundry because of the larger amount of free alkali in the soap made by our recipe, which is practically the same as that used at the McLean Hospital and the State Hospital. It is as follows:

“Dissolve twenty-two pounds of potash in six nine-quart pails of water, add thirty-four pounds of grease and boil very slowly six hours. Then fill a 100-gallon tank half full of water and let it come to a boil again. When it becomes stringy turn off the steam and fill the tank with water.

“The soap has been tested by the hospital apothecary and is found to correspond to the maximum of free alkali allowed by the 1900 United States Pharmacopia. Various fabrics have been allowed to soak in this soap for several days and have shown no detriment. The practical test of a year’s use shows no injury to clothing.”

Drugs

Dr. W. E. Dreyfus, chemist of Bellevue and Allied Hospitals, calls attention to another leak that formerly existed in those establishments and the same kind of leak may be found in the majority of hospitals of the country. In commenting on the hospital deficit question Dr. Dreyfus says: “You know that all chartered charitable institutions are entitled to tax-free alcohol, but very few take advantage of it. The saving for our city institutions on tax-free alcohol during 1903 amounted to about [Pg 152] $21,000, the indirect benefit therefrom being about $9,000 more. To give a specific instance: Before the King’s County Hospitals were supplied from this department, they spent the sum of $17,771.12 for drugs, liquors, etc. After they were consolidated with this department we furnished them the same amount at a saving of nearly $4,000 per annum.” These figures are large, because the institutions concerned are large, but when smaller institutions buy and continue to buy alcohol and pay the tax, which amounts to $2.07 a gallon, it is easy to see that a proportionate sum is being wasted in the majority of the hospitals of this country through this one channel. There is no question that hundreds of thousands of dollars in the aggregate every year are taken from the hospital treasuries of the country and poured into local liquor dealers’ pockets and various other pockets that ought to be expended in supplying legitimate needs.

Wasteful Physicians

Just what to do with physicians who are habitually wasteful is a question. It has been a noticeable fact in some hospitals that physicians who owned hospitals of their own were always more economical in the use of surgical supplies than others, whose only hospital experience was gained in institutions supported by the public. They knew the cost of supplies. They were footing the bills and wasted material meant money taken directly out of their pockets. Therefore they had formed habits of economy and were quick to check nurses who showed a tendency to wastefulness. If the spirit of economy, the spirit of personal ownership could take possession of the doctors connected with hospitals it would mean an enormous saving in the course of a year.

Teach Economy
Abuse of Appliances

The lack of careful instruction in the use and abuse of hospital [Pg 153] supplies and the absence of conscientious, competent supervision may always be expected to result in general waste. If in the very beginning of an interne’s or nurse’s course in a hospital, some pointed, practical and definite instruction could be given as to the cost of supplies, and the avoidance of common methods of waste, much might be accomplished. If a sense of individual responsibility can be cultivated at all, efforts in that direction cannot be begun too soon. It is lamentably true that there is perhaps no class of employees who carelessly destroy so much that is useful as those whose names appear as students and employees of our institutions. Usually what is common property is no concern of theirs. A loss to the institution is no loss to them. Whether or not a feeling of responsibility can be aroused in all hospital workers is an open question, but it is worthy of diligent and constant effort. One thing specially needs frequent emphasis, and that is regarding the misappropriation of appliances. “Use an article for the purpose for which it is intended and for no other.” This cannot be too thoroughly drilled into them. How many valuable hospital instruments are broken annually because nurses persist in using them to take corks out of bottles because no corkscrew is in sight. This is only one common illustration out of hundreds that might be cited on this point. A rigid rule requiring a money return or a replacing of the article and a careful account of the articles in each department is the only way to force a study of economy. The abuse of appliances which renders them unfit for use, in an unreasonably short time, can be met in the same way, requiring also that every article reported unfit for use be submitted for the inspection of the head of the department, before being condemned or thrown away as worthless. [Pg 154]

Careful Accounting
Watching the Expenditures

By careful accounting (and only in that way) can be ascertained the average amount of supplies that should be required in caring for a given number of patients. If this average amount is generally known or understood by heads of departments, internes, and nurses, it will be found that more care will be exercised to keep at least within ordinary limits. Very frequently the necessity for economy is never brought to the attention of the workers. Heads of departments too often seem in no way to be concerned with the cost or consumption of supplies. When this condition exists somebody is to blame. The superintendent, if he is the head of the hospital, as his official title would indicate, holds more of the power of checking waste in his hands than any other one or two persons. If he does not keep his financial eye on the expenditures of different departments, if he does not give time and study to the question of how to keep current expenses down to the minimum and at the same time do good work, if he does not, up to a certain point, regulate the purchase and distribution of the enormous quantities of supplies needed in the hospital, and insist on his colleagues in charge of departments doing the same thing, then waste is inevitable. If the father of a family simply pays bills for supplies without having a voice in controlling the consumption or use of those supplies he need not wonder if he finds the figures on accounts creeping higher and higher each month, and that is probably what is occurring in some hospitals, where the expense is excessive as compared with other institutions doing the same amount and same class of work. That economy and efficiency are quite compatible can be easily shown by actual [Pg 155] results in hospitals that have never adopted the plan of running the institution on a deficit, that either have to pay their bills promptly or close their doors.

Dietetic Department

No doubt the dietetic department of the hospital can furnish more concrete illustrations of waste than any other. Some of this so-called waste is legitimate and inevitable; much of it represents material that should not be saved, that has been rendered unfit for use by handling, but there is no question that a large proportion of this waste of food comes from a failure to fit the amount and character of the food served to the needs and tastes of the individual patient. A wise discrimination on the part of the one who serves the food would prevent much of it. Another important cause of waste comes from imperfect preparation of the food. Food cooked in bulk, and with no bond of connection between the one who cooks and those who consume the cooked product, is almost sure to be handled carelessly, overdone or under-done or unpalatable. Food that is properly cooked and tastefully served, so that it will appeal to the eye and to the palate as well, is much less likely to be wasted or rendered unfit for use by handling.

Pecuniary economy, a large part of it at least, and also hygienic economy of food and nutrition, depend greatly on the manner of handling of food in the kitchen, in transit, and in the wards. Success in fitting the food to the consumer, then, demands skill and care in cooking and serving. It demands discrimination, a proper sense not only of the physiological demands of the consumer, but of his tastes, and it demands, besides, proper facilities for getting the food to the patient in its most palatable and attractive form. Without these three factors being recognized, waste is inevitable. Then, too, the buyer of food must carry a good deal of responsibility. The quality of food [Pg 156] purchased, the place in which it was stored, and various other features enter into the question of waste. Without proper storage facilities “intelligent economy” in purchasing and caring for food is impossible. Buying over the telephone is one of the methods to be discouraged. Careful selection of perishable goods in open market is the only sensible way. Some hospitals have succeeded in reducing the expense from food waste by disposing of the garbage to contractors for a stipulated sum.

In the heating of a hospital there is room for a great waste of money. One small hospital, this last winter, one of the most severe seasons in years, saved two hundred dollars on the cost of fuel as compared with last year, as the result of “the intelligent economy” practiced by the engineer. A very considerable reduction in the expense of machinery, light and repairs is attributed by the board to the same source. Intelligent economy! The term deserves to be popularized, for of all things in hospitals it needs to be studied and cultivated.

This system of daily accounting for supplies is one that can be managed in even the smallest hospital. An inventory book in which is listed all the articles found in a department at a given time, such as hypodermic syringes, feeding cups, drinking glasses, medicine glasses, rectal tubes, catheters, etc., can also be used for requisitions or for noting, as furnished, additional articles of that class.

System

Another book for food supplies should be brought to the kitchen or storeroom each time supplies are replenished. Another book for keeping track of surgical supplies should be brought with each requisition. Some hospitals have also a “linen book,” which tells the amount of each kind of linen sent to the laundry from each department. Clean linen is noted in the book also when given out. These books should be sent to [Pg 157] the office each week (Monday morning is usually a good time) and the amounts supplied to each department reckoned up. When this amount in any department is excessive an investigation can be made with facts as a basis. Regarding this system, Sir Henry Burdette in “The Commissariat” says: “No true economy can ever be expected under a system by which the persons who order and use supplies, and the person who is responsible for the bills, both work independently and pull different ways. It is absolutely essential to a well-balanced administration that a spirit of responsibility should permeate the whole establishment, from the manager, on whom the multifarious charges accumulate for payment, down to the youngest probationer charged with serving out the rice pudding in her ward. And this spirit of responsibility must in all cases recognize a double duty. There is the duty towards those for whom each person invested with authority of any kind is called on to provide, and there is the duty toward the institution, represented by the person next in authority. Where this dual sense of responsibility is nicely balanced in every member of the institution, the management may be considered perfect.

To that end, it is, above all things, necessary that there should be one person invested with general control and endowed with a grasp of the whole situation. It cannot be too often repeated that in these matters to know is to control. There is no other road to economy. It cannot be compassed by appeals to conscience, not by nagging, not by a grudging, stingy giving out of necessary articles as though the consumer were guilty in requiring them. Let each housemaid know how many yards of cloth she is expected to use in her cleaning in a given time, let each pound of lint be registered against someone’s name, who shall be accountable; let each article be given out at the right time, [Pg 158] on the right day, to the right person, and with the understanding that the transaction, slight though it may be, has been noted down and will duly find its place in the weekly average and in the record of the whole expenditure. Let such a system once take root and then, be the institution large or small, rich or poor, hampered with old traditions or brimming over with untried theories, a spirit of true economy will reign throughout every department, worth far more, indeed, than the trifling secretarial labor expended in its production.”


[Pg 159]

APPENDIX.

Disinfection—Infected clothing from wards should be immediately placed in a vessel containing sufficient disinfecting fluid to cover it, and should be kept in it till disinfection is accomplished. The length of time varies with different disinfectants. By actual experiment, the length of time to destroy bacteria should be learned. Too much so-called disinfection is on the shot-gun plan, and no attempt is made to find out whether it produces the desired results. Most disinfectants are more powerful if used hot. Other conditions that modify the power of disinfectants are the kind and number of bacteria to be destroyed, the quality of associated material, as well as the strength and temperature of the solution. Bichloride of mercury destroys all forms of pathogenic micro-organisms and spores. For the latter a solution of 1 in 500 is needed, the exposure to be not less than one hour. It should not be used for the disinfection of excreta, because of its property of precipitating albuminous matter. This forms a coating around the bacteria, which prevents the penetration of the solution. This solution may be used in disinfecting clothing or rooms, but should never be used on metal substances.

A solution that is highly recommended for clothing contains the following:

Carbolic acid 3   parts
Common soft soap   parts
Water 100 parts

[Pg 160] Common laundry soap is first dissolved in water, the carbolic acid is added and the mixture is vigorously stirred. Experiments with this solution show that non-spore forming bacteria are destroyed in an exposure of one-half hour. Commercial carbolic acid may be used, which is somewhat less expensive than the purified product.

For the disinfection of excreta, a solution known as the American Standard is officially prescribed in the United States Army, it being specially stated that the chloride of lime should be of good quality, and not have undergone decomposition. It is made by dissolving six ounces of chloride of lime in a gallon of water.

For the disinfection of mattresses, live steam should be used whenever possible. When no facilities exist for steam disinfection of mattresses and pillows, a fumigation can will be found very valuable.

Fumigation Can—This can is made of galvanized iron, with a tight-fitting cover. It needs to be about four and a half feet high, and at least two feet and a half in diameter. A slat shelf, with iron or wire hooks that fasten over the top of the can, will be useful in sterilizing small articles. This contrivance is superior to any closet, as it confines the formaldehyde in small space, and can be made almost entirely air tight. It should always be remembered that formaldehyde has almost no power of penetration, and therefore special care is needed to expose all possible surfaces to the fumes.

Extermination of Vermin—To prevent bedbugs in hospital is no easy matter where patients and visitors are coming from all kinds of homes. A leading hospital superintendent recommends sulphur fumigation. It is said to be the only thing that will effectually destroy them. “In order to secure the desired results the fumes must be very dense. In preparing for fumigation large pans are used made to hold from [Pg 161] twenty-five to thirty pounds of sulphur, and other pans are filled with water. The heat from the burning sulphur will cause steam, which makes the sulphur fumigation more effective. In order to accomplish the entire destruction of the bedbug, it is necessary to fumigate three or four times in a month. It takes three weeks for the bugs to be hatched and eleven weeks to mature. By successive fumigations in this way a room or ward may be considered safe, but this treatment should be repeated twice a year.

For keeping beds free from bugs, the following prescription is recommended:

Corrosive sublimate   1 ounce
Spirits of turpentine 1 pint
Coal oil 1 pint

The corrosive sublimate should first be dissolved in alcohol and the mixture used through an atomizer or oil can.

To exterminate pediculi of the head, saturate the hair thoroughly with kerosene for three successive days and wash with warm water and green soap.

For pediculi on other parts of the body the following is recommended: Salicylic acid, 2 parts; toilet vinegar, 25 parts; alcohol, 75 parts. Apply with a flannel or piece of absorbent cotton. One application is usually sufficient.

CARE OF FLOORS.

The best finish, the ideal finish, for wood floors in hospitals, has yet to be invented. At the Cincinnati convention of hospital superintendents the subject of floor finishes was discussed, and the following recommendations made, which were based on experience:

On new maple floors two coats of Berry Brothers liquid granite varnish [Pg 162] is applied, then a finish composed of the following ingredients: One pound of paraffine dissolved in 1½ pints of linseed oil and 2 gallons of turpentine. This preparation is applied once a week with a mop by the ward maids, and is afterwards rubbed down with hair brushes covered with flannel. Water or alcohol dropped on these floors softens the wax, but spots can be touched up with the brush when necessary. On old floors two coats of oil is used and then the above mixture.

Where local conditions render frequent washing of floors necessary the following preparation has been used with satisfaction:

Grain alcohol 5 gallons
Orange shellac 2 pounds
Canada balsam   2 ounces
Castor oil 2 ounces

This is a government formula, and desirable for use where soft coal is burned for fuel. It should be mixed thoroughly in a suitable vessel, and allowed to stand for a day, before using. Add alcohol if it is too thick. Apply with a brush after the floors have been cleaned, and keep room vacant eighteen hours to allow time for drying.

Another formula that is used in some hospitals is: Paraffine melted, 6 ounces; turpentine, 1 gallon, thoroughly mix and add soft soap, 4 ounces. Mix well and let it stand 24 hours. Apply with a woolen cloth and rub in.


THE PRESBYTERIAN HOSPITAL
DIET SHEET

_______________ Division
New York _________ 190___
Ward No. ____________
 
NAMES OF
PATIENTS
                                               
House diet                        
Convalescent diet                          
Nitrogenous diet                        
Farinaceous diet                        
Milk diet                        
Extra diet                        
 
No. of patients on house diet ______________
No. of patients on convalescent diet ________
No. of patients on nitrogenous diet _________
No. of patients on farinaceous diet _________
No. of patients on milk diet _______________
No. of patients on extra diet _______________
Total No. of patients in ward __________
 
___________________________
Attending Physician—Surgeon
 
_______________________
House Physician—Surgeon
 
SAMPLE DIET SHEET

Sample Page of Hospital Linen Book

MONTH OF ____________ 190____
 
Day of
 Month 
In
 Use 
In
 Laundry 
In
 Resv.
Article  Discarded  New
Linen
 Added 
Req’r’d
Total
 on hand 
 Missing   Remarks 
        Bed Spreads          
      Sheets          
      Draw Sheets          
      Children’s Sheets          
      Operating room sheets          
      Bath Towelss          
      Face Towels          
      Glass Towels          
      Roller Towels          
      Surgical Towels (for wards)          
      Operating Room Towels          
      Dresser Covers          
      Sash Curtain          
      Blankets          
      Men’s Gowns          
      Women’s Gowns          
      Children’s Gowns          
      Covers for Dressings          
      Plain Bandages          
      Breast Bandages          
      Many-tailed Bandages          
      T. Bandages          
      Special Bandages          
      Etc., Etc., Etc.          

Sample Page of Hospital Cash Book.

Receipts for Month of ______
 
      Bal. on hand from previous month              
  From In-Patients    
  Out-Patients    
  Private Nursing    
  Special Nursing    
  Sale of Medicine & Supplies    
  Entertainments    
  Interest on Invested Funds    
  Annual Contributions    
  Other Sources    
    Total $ ...........    
    Balance ..............    
 
Disbursements for Mo. of ________ 19____
 
      Balance for previous month            
  For Meat    
  Fish    
  Butter    
  Flour, Bread and Meal    
  Milk    
  Water    
  Ice    
  Potatoes and Vegetables    
  Groceries and Provisions not above  
 enumerated
   
  Soap and Cleaning Appliances    
  Fuel    
  Gas, Oil and Light    
  Bedding and Gen. House Fur.    
  Nurses’ Uniforms    
  Other Training School Ex.    
  Wines and Spirits    
  Drugs and Surgical Appliances    
  Surgical Dressings    
  Advertising, Print. & Postage    
  Repairs    
  Taxes and Insurance    
  Contingencies    
    Total $ ...........    
    Balance ..............    

Transcriber’s Notes:


Antiquated spellings or ancient words were not corrected.

The illustrations have been moved so that they do not break up paragraphs and so that they are next to the text they illustrate.

Typographical and punctuation errors have been silently corrected.

*** END OF THE PROJECT GUTENBERG EBOOK 75063 ***